西半山新盤|Castle One by V新盤攻略懶人包(不斷更新)

由The V Group發展的西半山衛城道一號(Castle One by V),屬已落成單幢住宅,提供112伙單位。項目於2016年7月落成,原為服務式收租物業,現轉作出售。戶型涵蓋開放式至兩房間隔。House730幫你緊貼追蹤一手新盤行情,不斷更新Castle One by V的價單分析、平面圖、示範單位及生活配套。由搵樓至買樓,House730為你提供一站式服務。
樓盤資料
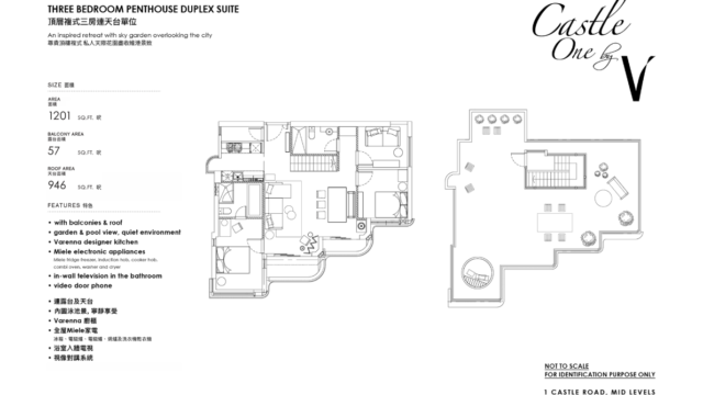
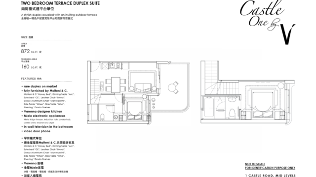
Castle One by V位於西半山衛城道一號,全幢單位提供112伙,地下、1樓至32樓、天台 (不包括4樓、13樓、14樓及24樓),實用面積由379至1,039平方呎,單位包括開放式至兩房及複式單位,部分高層享有海景。項目由The V Group發展,原為服務式出租豪宅,部份單位附連意大利Molteni & C名牌家具及Miele電器,現時轉為出售。
| 名稱: | Castle One by V |
| 所在地區 | 西半山 |
| 中文地址: | 衛城道1號 |
| 英文地址: | 1 Castle Road, Mid-Levels, Hong Kong |
| 大廈座數: | 1座 |
| 大廈層數: | 地下、1樓至32樓、天台 (不包括4樓、13樓、14樓及24樓) |
| 單位總數: | 112 |
| 實用面積: | 379至1,039平方呎 |
| 單位間隔: | 開放式、1房-2房及頂層複式單位 |
| 發展商: | The V Group |
| 關鍵日期: | 已落成 |
| 校網: | 12小學校網,中學為中西區 |
銷售資料
截止2026年2月4 日為止,成交價及呎價最高單位為29樓及30樓複式B室,實用面積758方呎,成交價3,500萬元,實用呎價46,174元,項目累沽13伙,涉及資金近2億元。項目加推15伙,包括31樓及32樓複式E室,實用面積879方呎,意向呎價約5萬元。
平面圖



示範單位































生活配套
西半山衛城道一號位於港島傳統豪宅區,環境靜中帶旺,生活配套成熟,適合注重校網及市中心便利的家庭或專業人士。 項目步行往中環半山自動扶手電梯系統約3–5分鐘,即可直達中環核心商業區、金鐘及上環。附近巴士小巴線頻密,連接灣仔、銅鑼灣,自駕約10–15分鐘到達中環。 區內有超市、便利店及街坊商店,沿半山電梯線下行至中上環,可步行到達孫中山紀念館、元創方(PMQ)、荷李活道、大館等,感受中西區歷史文青氣息。中西區美食選擇豐富多元,從米芝林星級粵菜到蘇豪區咖啡店、小餐廳,無論高端饗宴或輕鬆小酌都一應俱全。 屬11小學校網(中西區),鄰近香港大學、聖保羅書院、聖士提反女子中學、英華女學校等名校,特別適合有子女家庭。



全港新盤應有盡有
資料來源: House730
