啟德新盤|天璽- 天第2期新盤攻略懶人包(不斷更新)

由新鴻基地產發展的啟德天璽‧天,分兩期發展,提供1,490伙。其中天璽‧天第2期由2座組成,提供584伙住宅單位,實用面積由296至4,306平方呎。House730幫你緊貼追蹤一手新盤行情,不斷更新天璽‧天第2期價單分析、平面圖、示範單位、生活配套。House730由搵樓至買樓為你一手包辦。

樓盤資料

位於啟德協調道10號的天璽•天 第2期 ,提供584伙,單位分佈於第1座及第2座,樓高38層,各配置四部升降機。標準單位有578伙,實用面積由296至2,230平方呎,另設有6伙特色戶,實用面積為2,765至4,306平方呎。

標準單位包括210伙一房單位,實用面積由296至308平方呎;另提供189伙兩房單位,實用面積由443至612平方呎。21伙三房單位實用面積為787平方呎,全屬三房連套房及工作間間隔,採用開放式廚房設計。四房單位提供158伙,實用面積874至2,230平方呎。最細單位為1座5至28樓B9室,實用面積296平方呎。第1座49及50樓A室屬第2期最大單位,實用面積4,306平方呎,為複式四房間隔,設有937平方呎平台及1,432平方呎天台及私人泳池。

即睇天璽‧天第2期銷售詳情

名稱: 天璽‧天第2期
所在地區 啟德
中文地址: 協調道10號
英文地址: 10 Con­corde Road
大廈層數: 2座
大廈層數: 38層 (不包括4樓、13樓、14樓、24樓、29樓、34樓及44樓)
單位總數: 584伙
樓層高度: 2.85米至4米
實用面積: 296至4,306平方呎
單位間隔: 開放式至4房
發展商: 新鴻基地產
管理公司: Infi­nite Carat Liv­ing Lim­it­ed
關鍵日期: 2025年
校網: 34小學校網,中學為九龍城區

價單

暫時透過招標出售單位。項目第1及2號銷售安排,於10月14日開始透過招標形式發售24伙4房戶,實用面積874平方呎至2,230平方呎。

銷售安排第1號有15伙,當中5伙為標準分層4房雙套,位於第1座A單位,實用面積2,230平方呎,連136平方呎露台(其中32樓為特色戶),望啟德市景,並設私人電梯大堂,整項目僅提供14伙。另外5伙為第1座的B單位,實用面積1,808平方呎(其中32樓為特色戶),以及5伙第1座的C單位,實用面積1,511平方呎(其中32樓為特色戶,實用面積1,513平方呎)。

銷售安排第2號共9伙,其中3伙為第2座的C單位,實用面積1,227平方呎,剩餘6伙則為第2座的A1單位,實用面積908平方呎,5樓單位實用面積為874平方呎。

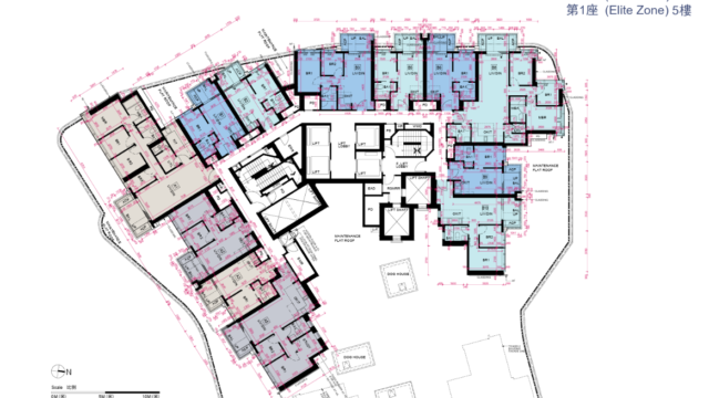
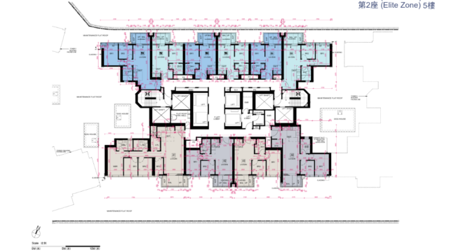
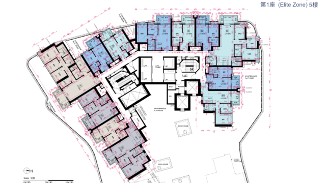
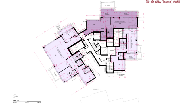
平面圖

skytower132
skytower133
skytower135
skytower150
skyfloor6
skyfloor6
skyfloor5
skyfloor4
skyfloor3
skyfloor1
skyfloor1

示範單位

四房單位實用面積2,230方呎
落地大玻璃窗令室內採光度大增
四房示範單位露台達136方呎
主人套房浴室約400方呎
skyba
客廳連接露台
飯廳設有中島式備餐間
充滿空間感的廚房
浴室參考酒店設計
45A
45A1
45A2
45A4
45A5
outlook
示範單位外望維港及跑道區

生活配套

啟德區雖然是新發展區,但無論在交通、康樂、教育和醫療等起居生活配套方面,是一個具發展潛力且配套完善的社區。天璽‧天是連接啟德站的私人住宅,與港鐵啟德站無縫連接,出入方便,且鄰近多條巴士及小巴路線,往返各區十分便利。

啟德大型購物中心如啟德雙子匯、百貨公司SOGO、Airside、MIKIKI及晴朗商場,提供多間商舖及餐飲食肆。天璽‧天連接地下購物街,開幕後將令購物圈更方便。

啟德體育園乃全港最大戶外多用途體育場館,設有5萬座位主場館和多功能場館,是舉辦各類體育活動及大型演唱會的地方,成為新興康樂消閒娛樂熱點。此外,區內有單車公園、遊樂場、空中花園及海濱長廊,為住戶提供充足的戶外休閒空間,讓人放鬆舒展。啟德區屬於九龍城區中學網,小學則屬於34校網,擁有多間學校。除香港兒童醫院外,興建中的啟德醫院,將來設有專科服務和急症設施,鄰近的九龍城聖德肋撒醫院及播道醫院也為居民提供醫療支援。

即睇全港一手盤

資料來源: House730