已售
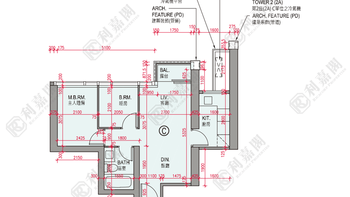
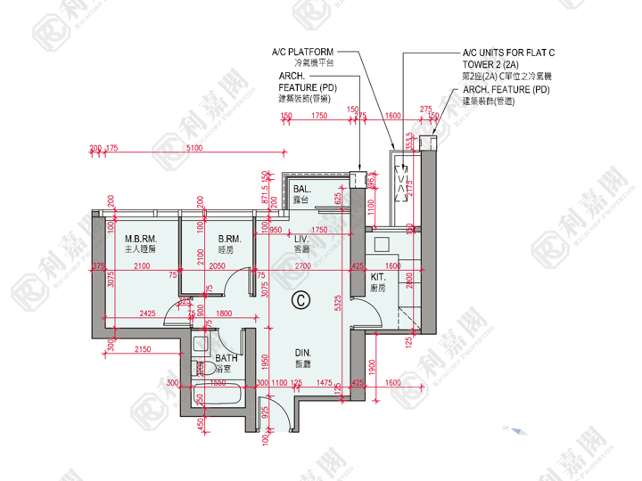
日出康城 7期A MONTARA 2座 (2A)18楼C室
注册编号:22061700320158
|成交日期:06/06/2022
PRN:D4496487
土地注册处
私人住宅

吳麗賢 AnnNg
客戶董事(E-445007)
已售


1/6
成交价
$938 万
实用面积
510呎
售 $18,392 /呎
户型
-
实用率
-
朝向
-
楼龄
4年
成交日期: 06/06/2022
交房时间
-
小区期数
共23 期
楼栋
82 座
规划户数
24,398
步行到康城站
6 分钟


