紅磡新盤|首岸新盤攻略懶人包(不斷更新)

由恒基地產、希慎興業、帝國集團及市建局聯合發展的紅磡首岸,位於紅磡庇利街1號,總共分四期發展,提供1,296伙。首岸第1期提供約360伙,實用面積301至642平方呎。House730緊貼一手新盤行情,持續更新首岸的價單、平面圖、示範單位、生活配套等資訊,並提供同區樓盤比較。House730由搵樓到買樓,為你全程包辦。
樓盤資料
位於紅磡庇利街1號的首岸,為市建局在庇利街與榮光街的大型重建項目,屬於市建局全港首個小區發展模式旗艦項目,涵蓋8個毗鄰地皮,分四期發展,共提供1,296伙。首岸第1及第3期已獲批預售樓花同意書,第1期主打兩房及三房單位,提供360伙,實用面積301至642平方呎,逾九成屬兩房單位,預計關鍵日期2027年8月31日。
| 名稱: | 首岸 |
| 所在地區 | 紅磡 |
| 中文地址: | 庇利街1號 |
| 英文地址: | 1 Bailey Stree |
| 大廈座數: | 1座 |
| 大廈層數: | 樓高27層,不設4樓、13樓、14樓及24樓 |
| 單位總數: | 360伙 |
| 樓層高度: | 約3.25米 |
| 實用面積: | 301至642方呎 |
| 單位間隔: | 2房及3房(標準單位) |
| 發展商: | 恒基、帝國集團、希慎興業及市建局 |
| 管理公司: | 偉邦物業管理有限公司 |
| 關鍵日期: | 2027年8月31日 |
| 校網: | 35小學校網,中學為九龍城區 |
價單
首岸首批110伙單位,包括100個2房單位及10個3房單位,實用面積339至642方呎,設有100天付款計劃,樓價獲9%折扣,折實價638萬至1,215.12萬元,折實呎價17,365至20,065元,折實平均呎價18,666元。
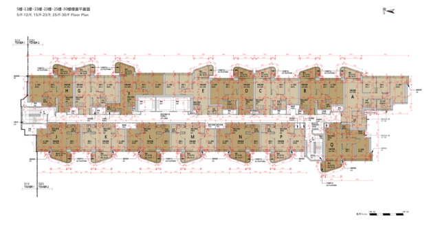
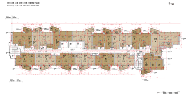
平面圖



示範單位













社區配套
首岸位處紅磡及土瓜灣一帶,社區生活圈相對完整及成熟,日常所需由交通網絡到飲食購物、社區設施與休閒空間都充足。首岸前往港鐵土瓜灣站需時約10分鐘,區內有多條主要道路連接九龍各區,住戶可乘住公共交通,如鐵路、巴士等前往各區,路線密度高,乘搭選擇多,對於上班族同需要經常往返港島、九龍不同地區嘅人士,交通算方便。日常購物方面,可到紅磡廣場、黃埔新天地,以及較具規模的啟德Airside,生活氣息濃厚,首岸周邊亦有便利店、超級市場、街市或食肆,滿足到一日三餐需求。附近設有不同類型嘅餐廳與小食店,亦有咖啡店或甜品店。紅磡屬已發展多年區域,社區配套成熟,醫療、藥房、健身、教育相關服務等,一應俱全。對於家庭用戶,教育資源往往是考慮重點,首岸位處 小學 35 校網,而中學就屬於九龍城區,區內不少有名氣學校,升學配套具吸引力。首岸附近更有不少綠化空間,除紅磡海濱休憩區、啟德海濱花園外,啟德河沿線以及茶果嶺海濱公園等,適合去放鬆和親子活動。即睇全港一手新盤
資料來源: House730
