中半山新盤|雅盈峰新盤攻略懶人包 (不斷更新)

由盈大地產及資本策略發展的中環己連拿利3號雅盈峰,為單幢式物業,全幢提供99伙,間隔由1房至4房,380至2,523平方呎。House730緊貼一手新盤行情,不斷更新雅盈峰價單分析、平面圖、示範單位及生活配套。由搵樓至買樓,House730一手包辦。
樓盤資料
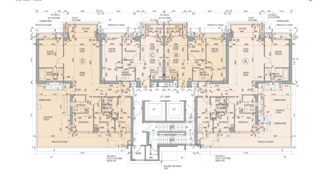
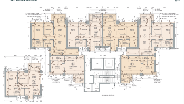
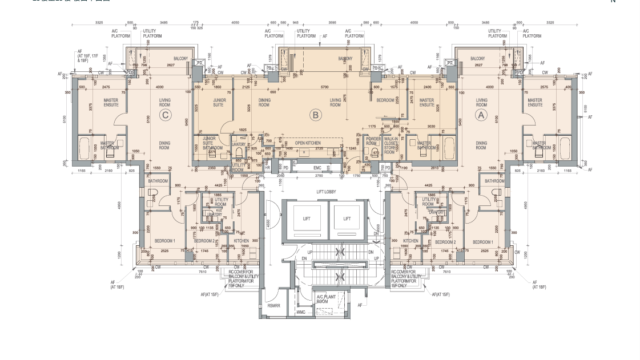
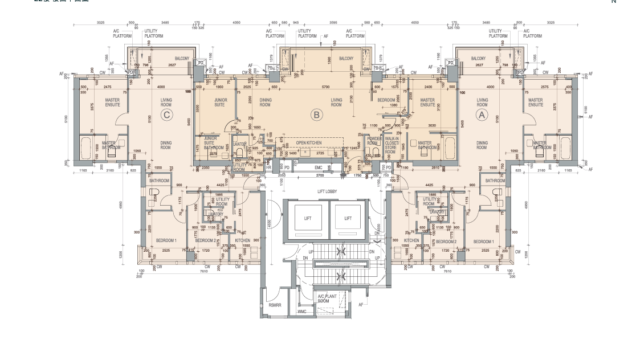
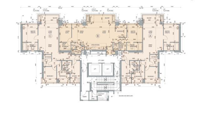
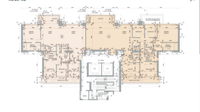
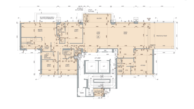
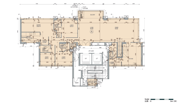
位於中環己連拿利3號的雅盈峰,為單幢式住宅物業,共提供99個單位,實用面積380至2,523平方呎,項目主打3房或以上的千呎大戶,該類單位佔物業總數逾40%。住宅樓層分佈2樓至32樓,每戶均設露台及工作平台,物業預計2026年落成。
| 名稱: | 雅盈峰 |
| 所在地區 | 中半山 |
| 中文地址: | 己連拿利3號 |
| 英文地址: | 3 Glenealy |
| 大廈座數: | 1座 |
| 大廈層數: | 2至32樓 (不包括4樓、13樓及14樓) |
| 單位總數: | 99伙 |
| 樓層高度: | 2.85至4米 |
| 實用面積: | 380至2,523平方呎 |
| 單位間隔: | 1房至4房 |
| 發展商: | 盈大地產及資本策略 |
| 管理公司: | 南盈物業有張限管理公司 |
| 關鍵日期: | 2026年6月30日 |
| 校網: | 11小學校網,中學為中西區 |
價單
項目暫時訪問招標方式出售。 最新加推單位為19樓B室,3房間隔,實用面積1,074平方呎,2月1日截標。至於項目15樓C室,實用面積1,017平方呎,以4,230.7萬元成交,實用呎價41,600元
平面圖










示範單位










生活配套
雅盈峰鄰近中環金融核心區,所處地段豪宅供應匱乏,周邊甲級商廈及標誌性建築林立,可俯瞰城市金融繁忙景致,遠眺香港公園及香港動植物公園,以及禮賓府;住客既可享受半山寧靜,亦緊貼政商脈搏,往返中環、金鐘工作交通十分方便。步行到中環CBD約7–10分鐘;半山行人電梯網絡快捷,3分鐘即達香港動植物公園。樓盤設有9,358平方呎住客會所,包括園林區及綠化地帶。物業毗鄰佔地60萬平方呎的香港動植物公園,另近孫中山紀念館、遮打花園、香港大會堂及圖書館。中環蘇豪區及蘭桂坊食肆酒吧雲集,休閒娛樂選擇豐富。即睇全城更多一手盤
資料來源: House730
