啟德新盤|DOUBLE COAST III新盤攻略懶人包(不斷更新)

由會德豐地產、恒基地產、中國海外及新世界發展聯合推出的啟德DOUBLE COAST,分3期發展,全期合共提供1,590伙住宅單位,DOUBLE COAST第3期佔去525伙,已屆現樓。House730幫你緊貼追蹤一手新盤行情,不斷更新價單分析、平面圖、示範單位、生活配套。House730由搵樓至買樓為你一手包辦。
樓盤資料
DOUBLE COAST位於九龍啟德承豐道19號,DOUBLE COAST 第3期包括1A及1B座(高座),共提供525伙單位,實用面積249至1,373平方呎,涵蓋開放式至4房單位。其中1房及2房單位約佔整項目的80.7%,以實用面積500平方呎以下單位為主。
物業資料表
| 名稱: | DOUBLE COAST III |
| 所在地區 | 啟德 |
| 中文地址: | 承豐道19號 |
| 英文地址: | 19 Shing Fung Road |
| 大廈座數: | 1座 |
| 大廈層數: | 36層(不設4樓、13樓、14樓、24樓及34樓) |
| 單位總數: | 525 |
| 樓層高度: | 3.075至3.825米 |
| 實用面積: | 249至1,373平方呎 |
| 單位間隔: | 開放式至4房 |
| 發展商: | 會德豐地產、恒基地產、中國海外及新世界發展 |
| 管理公司: | Double Coast Property Management Limited |
| 關鍵日期: | 已現樓 |
| 校網: | 小學34校網,中學為九龍城區 |
價單分析
首批單位105伙,實用面積249至696平方呎,包括8伙開放式、42伙1房、31伙2房及24伙3房。首批價單定價476.2萬至1,806萬元,價單呎價18,930至25,948元,扣除最高12%折扣優惠後,折實售價約419.1萬至1,589.3萬元,折實呎價約16,660至22,835元,折實平均呎價約19,399元。首日開賣沽出42伙單位,佔首批推出53伙的約80%,套現逾3.15億元,首輪有2組大手客各自連購4伙單位,包括1組客人購入2伙2房單位及2伙開放式單位,涉及金額逾2,410萬元。
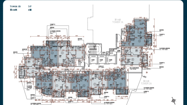
單位平面圖







即睇 DOUBLE COAST III 銷售詳情
示範單位
A座28樓B室










B座28樓G室









生活配套
新發展區的啟德區,是一個充滿活力的新社區,隨著眾多新樓落成,吸引家庭客及單身人士進駐此區。該區的交通十分便利,設有啟德港鐵站,鐵路之外,可接駁巴士及小巴前往其他地方。區內購物和休閒配套也相當齊全。啟德發展區內有多個商場,包括雙子匯、Airside,佔地逾70萬方呎的啟德零售館,涵蓋三座建築物,提供各式各樣的商店和餐廳,提供美食應有盡有之外,康樂娛樂設備齊全,如啟德零售館的Top Bowl保齡球中心、戲院等。區內設有街市,提供新鮮蔬菜、水果、肉類和海鮮,以及各種日常用品。社區環境佳,近海傍設有海濱及綠化空間,居民能夠享受到戶外活動的樂趣,非常適合散步、跑步和家庭聚會。區內的醫療設施也十分完善,多間診所和醫院提供便捷的醫療服務。





全城新盤應有盡有
資料來源: House730
