啟德新盤|維港·灣畔 第1B期新盤攻略懶人包(不斷更新)

由中國海外、恒基兆業地產、嘉華國際及九龍倉合作發展的維港·灣畔第1B期,位於九龍啟德承豐道18號,由一座住宅大樓組成,合共提供511伙分層住宅,實用面積300至669方呎,項目已屆現樓。House730幫你緊貼追蹤一手新盤行情,不斷更新維港·灣畔第1B期的價單分析、平面圖、示範單位及生活配套。House730由搵樓至買樓為你一手包辦。
位於啟德承豐道18號的維港·灣畔共分四期發展,總數提供2,060伙。維港·灣畔第1B期為第2座,包括第2A座及第2B座,住宅單位總數共511伙,標準單位佔509伙,另設有2伙特色戶。戶型包括開放式至三房連套房間隔,實用面積由300至699平方呎。一房單位提供145伙,佔項目28%。兩房單位提供312伙,佔項目61%,實用面積450至639方呎,連天台單位設有2伙,內置樓梯上天台。三房單位提供54伙,佔項目約11%,實用面積568方呎至669方呎。
| 名稱: | 維港‧灣畔1B期 |
| 所在地區 | 啟德 |
| 中文地址: | 承豐道18號 |
| 英文地址: | 18 Shing Fung Road |
| 大廈座數: | 1座 |
| 大廈層數: | 31層(不包括4樓、13樓及14樓,24樓及34樓) |
| 單位總數: | 511伙 |
| 樓層高度: | 2.8至4.05米 |
| 實用面積: | 300至669方呎 |
| 單位間隔: | 開放式至3房 |
| 發展商: | 中國海外、恒基兆業地產、嘉華國際及九龍倉 |
| 管理公司: | 維港灣畔物業管理有限公司 |
| 關鍵日期: | 現樓 |
| 校網: | 34小學校網,中學為九龍城區 |
即睇維港·灣畔 第1B期銷售詳情
價單分析
價單分析
首張價單103伙,全部屬維港海景單位,折實平均呎價 29,628 元,單位實用面積 516 至 669 方呎,包括 63 伙 2 房單位及 40 伙 3 房單位,定價由 1,524.5 萬元至 2,459.7 萬元,平均呎價 29,351 至 36,767 元。入場單位為 2A 座 2 樓 B 室,實用面積 516 方呎,折實單位 1,332.7 萬元,折實呎價 25,828 元。
折扣優惠
「發展商聯盟折扣」優惠
同時滿足以下四項條件之買方可獲額外 1%售價折扣優惠作為「發展商聯盟折扣」優惠。 (i) 於簽署臨時買賣合約時已屬「Club Wheelock」會員,(註: 最少一位個人買方(如買方是以個人名義)或最少一位買方之董事(如買方是以公司 名義)須為「Club Wheelock」會員); (ii) 於簽署臨時買賣合約時已屬「恒地會」會員,(註: 最少一位個人買方(如買方是以個人名義)或最少一位買方之董事(如買方是以公司名義) 須為「恒地會」會員); (iii) 於簽署臨時買賣合約時已追蹤「嘉多一點 K. Wah Plus」Instagram 帳號(註: 最少一位個人買方(如買方是以個人名義)或最少一位買方之董事 (如買方是以公司名義)須已追蹤「嘉多一點 K. Wah Plus」Instagram 帳號);及 (iv) 於簽署臨時買賣合約時已追蹤中國海外集團官方 Instagram 帳號 (註: 最少一位個人買方(如買方是以個人名義)或最少一位買方之董事(如買 方是以公司名義)須已追蹤中國海外集團官方 Instagram 帳號)。
「盡覽維港 繁華在目」優惠
買方可獲額外 3%售價折扣優惠作為「盡覽維港 繁華在目」優惠。
「匯聚世界精彩」優惠
買方可獲額外 3%售價折扣優惠作為「匯聚世界精彩」優惠。
「盡享寰宇風情」優惠
買方可獲額外 3%售價折扣優惠作為「盡享寰宇風情」優惠。
付款方法
120 天現金優惠付款計劃 (照售價減 2%)
1、相等於成交金額 5%之臨時訂金於買方簽署臨時買賣合約時繳付。
2、成交金額 5%即加付訂金於買方簽署臨時買賣合約後 60 天內繳付。
3、成交金額 90%即成交金額餘款於買方簽署臨時買賣合約後 120 天內繳付。
180 天現金優惠付款計劃 (照售價減 1%)
270 天現金優惠付款計劃 (照售價)
首張價單103伙,全部屬維港海景單位,折實平均呎價 29,628 元,單位實用面積 516 至 669 方呎,包括 63 伙 2 房單位及 40 伙 3 房單位,定價由 1,524.5 萬元至 2,459.7 萬元,平均呎價 29,351 至 36,767 元。入場單位為 2A 座 2 樓 B 室,實用面積 516 方呎,折實單位 1,332.7 萬元,折實呎價 25,828 元。
「發展商聯盟折扣」優惠
同時滿足以下四項條件之買方可獲額外 1%售價折扣優惠作為「發展商聯盟折扣」優惠。 (i) 於簽署臨時買賣合約時已屬「Club Wheelock」會員,(註: 最少一位個人買方(如買方是以個人名義)或最少一位買方之董事(如買方是以公司 名義)須為「Club Wheelock」會員); (ii) 於簽署臨時買賣合約時已屬「恒地會」會員,(註: 最少一位個人買方(如買方是以個人名義)或最少一位買方之董事(如買方是以公司名義) 須為「恒地會」會員); (iii) 於簽署臨時買賣合約時已追蹤「嘉多一點 K. Wah Plus」Instagram 帳號(註: 最少一位個人買方(如買方是以個人名義)或最少一位買方之董事 (如買方是以公司名義)須已追蹤「嘉多一點 K. Wah Plus」Instagram 帳號);及 (iv) 於簽署臨時買賣合約時已追蹤中國海外集團官方 Instagram 帳號 (註: 最少一位個人買方(如買方是以個人名義)或最少一位買方之董事(如買 方是以公司名義)須已追蹤中國海外集團官方 Instagram 帳號)。
「盡覽維港 繁華在目」優惠
買方可獲額外 3%售價折扣優惠作為「盡覽維港 繁華在目」優惠。
「匯聚世界精彩」優惠
買方可獲額外 3%售價折扣優惠作為「匯聚世界精彩」優惠。
「盡享寰宇風情」優惠
買方可獲額外 3%售價折扣優惠作為「盡享寰宇風情」優惠。
120 天現金優惠付款計劃 (照售價減 2%)
1、相等於成交金額 5%之臨時訂金於買方簽署臨時買賣合約時繳付。
2、成交金額 5%即加付訂金於買方簽署臨時買賣合約後 60 天內繳付。
3、成交金額 90%即成交金額餘款於買方簽署臨時買賣合約後 120 天內繳付。
180 天現金優惠付款計劃 (照售價減 1%)
270 天現金優惠付款計劃 (照售價)
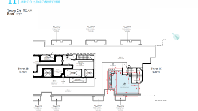
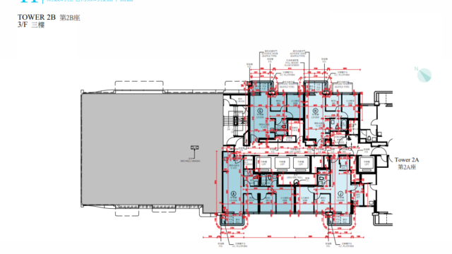
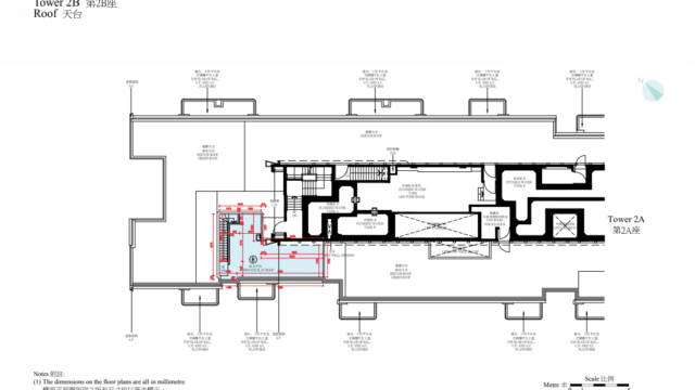
項目平面圖
2A座






2B座


















示範單位1A座17樓A室









示範單位2B座17樓A室






住客會所








生活配套
啟德新社區建設了多項大型基建,包括啟德體育園,加上鄰近九龍城,起居生活配套齊全。屬國際地標之一的啟德體育園,乃香港首個綜合體育場館,擁有多個運動場地,適合舉辦各類型的體育活動,包括田徑、足球和其他球類運動。體育園除了舉行專業賽事外,還提供社區活動場地,方便附近居民參與健康和體育活動,增強社區凝聚力。位處市區的啟德設有港鐵站,前往各區都非常方便,帶動整個啟德社區的交通便利性。此外,啟德區的零售館及 AIRSIDE 商場是區內社區生活配套的重要組成部分。啟德的零售館提供多種購物選擇,包括時尚店、生活用品店和餐飲場所,為居民的日常生活提供便利。AIRSIDE 商場的設計注重舒適的購物體驗,並且提供多種休閒設施,適合家庭和朋友聚會。該物業位於九龍區的 34 小學校網和九龍城中學網,是九龍區其中一個受歡迎的校網。



全港新盤應有盡有
資料來源: House730
