大埔新盤|上然第三期新盤攻略懶人包(不斷更新)

由萬科置業及青建國際合作發展的上然第三期,由2座住宅大樓組成,涉及約565伙住宅單位。戶型由開放式至4房間隔,實用面積介乎222至1,028平方呎,預計關鍵日期為2026年7月31日。House730幫你緊貼追蹤一手新盤行情,不斷更新上然第三期價單分析、平面圖、示範單位、生活配套、同區樓盤比較。House730由搵樓至買樓為你一手包辦。
樓盤資料
位於大埔馬窩路的上然,項目總共分為三期發展,總數提供1,650個單位。上然 第三期 包括第3座和第5座,提供565伙單位,戶型包括開放式至四房間隔,實用面積由222至1,028平方呎。標準開放式戶型佔21伙,一房佔173伙、兩房佔249伙,三房佔58伙;另設64伙的天台或平台特色單位。最小單位為5座1樓C8室,實用面積222平方呎,屬於開放式單位,另有112平方呎的平台。3座12樓A1室為面積最大的單位,實用面積1,028平方呎,屬四房單位,設有945平方呎天台及181平方呎平台,單位內設有內置樓梯直達天台。預計關鍵日期為2026年7月31日。
| 名稱: | 上然 第三期 |
| 所在地區 | 大埔 |
| 中文地址: | 馬窩路19號 |
| 英文地址: | 19 Ma Wo Road |
| 大廈座數: | 2座 |
| 大廈層數: | 第3座:1至12樓(不設4樓)第5座:1至15樓(不設4樓、13樓及14樓) |
| 單位總數: | 565 |
| 樓層高度: | 2.8至3.85米 |
| 實用面積: | 222至1,028方呎 |
| 單位間隔: | 開放式至4房 |
| 發展商: | 萬科置業及青建國際 |
| 管理公司: | 上然物業管理有限公司 |
| 關鍵日期: | 2026年7月31日 |
| 校網: | 84小學校網,中學為大埔區 |
價單分析
價單
大埔上然第三期首張價單113伙,折實平均呎價為11,395元,包括10伙開放式、50伙1房、47伙2房和6伙3房,實用面積246至715平方呎,價單定價為360.2萬至1,092萬元,實用呎價為11,849元至16,175元。扣除最大17%優惠,折實價299萬至906.4萬元,折實呎價為9,836至13,427元。首批單位有2伙折實價低於300萬元,有60伙折實價低於400萬元,同樣受惠於100元印花稅措施。最低售價及呎價的單位為5座2樓D11室,實用面積304平方呎1房,折實價299萬元,折實呎價9,836元。**一手住宅物業銷售資料
售價折扣
售價折扣
可點選以下不同的選項查看折扣優惠
「香港萬客會」會員折扣
在簽署臨時合約當日, 買方如屬「香港萬客會」會員,可獲1%售價折扣優惠。每位個人買方(如以買方是以個人名義)或最少一位買方之董事(如買方是以公司名義)須為「香港萬客會」會員,方可享此折扣優惠
置業折扣
簽署臨時合約購買本價單中所列之住宅物業,可獲額外2%售價折扣優惠
印花稅津貼折扣
買方賺買本價單中所列之住宅物業可獲額外2%售價折扣優惠
Summer 折扣
凡於2025年8月31日或之前簽署臨時合約購買本價單所列之住宅物業之買方可 獲額外1%售價折扣優惠。
付款計劃
100 天即供付款計劃 (照售價減11%)
1、臨時訂金即樓價 5% (『臨時訂金』)於簽署臨時買賣合約時繳付,買方須於簽署臨時買賣合約的日期後 5 個工作日內簽署買賣合約。
2、買方須於簽署臨時買賣合約後45天內再付成交金額5% 作為加付訂金
3、買方須於簽署臨時買賣合約後100天內再付成交金額90% 作為成交金額餘款
100天一按付款計劃 (照售價減9%)
建築期付款計劃 (照售價減8%)
建築期二按付款計劃 (照售價減5%)
輕鬆建築期一按付款計劃 (照售價減3%)
大埔上然第三期首張價單113伙,折實平均呎價為11,395元,包括10伙開放式、50伙1房、47伙2房和6伙3房,實用面積246至715平方呎,價單定價為360.2萬至1,092萬元,實用呎價為11,849元至16,175元。扣除最大17%優惠,折實價299萬至906.4萬元,折實呎價為9,836至13,427元。首批單位有2伙折實價低於300萬元,有60伙折實價低於400萬元,同樣受惠於100元印花稅措施。最低售價及呎價的單位為5座2樓D11室,實用面積304平方呎1房,折實價299萬元,折實呎價9,836元。**一手住宅物業銷售資料
售價折扣
可點選以下不同的選項查看折扣優惠
「香港萬客會」會員折扣
在簽署臨時合約當日, 買方如屬「香港萬客會」會員,可獲1%售價折扣優惠。每位個人買方(如以買方是以個人名義)或最少一位買方之董事(如買方是以公司名義)須為「香港萬客會」會員,方可享此折扣優惠
置業折扣
簽署臨時合約購買本價單中所列之住宅物業,可獲額外2%售價折扣優惠
印花稅津貼折扣
買方賺買本價單中所列之住宅物業可獲額外2%售價折扣優惠
Summer 折扣
凡於2025年8月31日或之前簽署臨時合約購買本價單所列之住宅物業之買方可 獲額外1%售價折扣優惠。
100 天即供付款計劃 (照售價減11%)
1、臨時訂金即樓價 5% (『臨時訂金』)於簽署臨時買賣合約時繳付,買方須於簽署臨時買賣合約的日期後 5 個工作日內簽署買賣合約。
2、買方須於簽署臨時買賣合約後45天內再付成交金額5% 作為加付訂金
3、買方須於簽署臨時買賣合約後100天內再付成交金額90% 作為成交金額餘款
100天一按付款計劃 (照售價減9%)
建築期付款計劃 (照售價減8%)
建築期二按付款計劃 (照售價減5%)
輕鬆建築期一按付款計劃 (照售價減3%)
單位平面圖
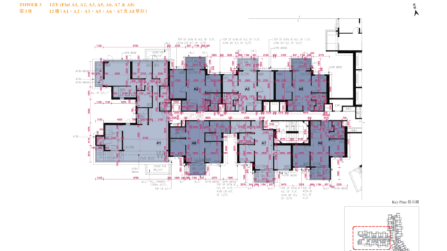
第3座平面圖










第5座平面圖
























示範單位






生活配套
大埔上然鄰近新峰花園及承峰,四周環境翠綠,上然設有住客會所,並連有戶外休憩空間,總共逾10萬平方呎,其中第三期的Mountain Club面積約為33,092平方呎,設有6,183平方呎的空中花園及1,182平方呎的園景和綠化區。會所設有多項設備,包括長約50米的室外游泳池、約25米的室內恆溫游泳池、長約200米的戶外環迴緩跑徑,多用途運動場可用作籃球場或羽毛球場,此外還有Cafe Feast & Bistro等,設施逾50項。屋苑附近有多個購物商場及超市,如大埔超級城及新達廣場,東鐵沿綫有新城市廣場、圍方及又一城等。區內還有鐵路博物館、自然護理區、保育區、大埔海濱公園等,為假日消閒好去處。屋苑住戶可乘坐小巴前往東鐵線大埔站,轉乘港鐵前往各區。港鐵大埔站附近提供多條巴士及小巴路線,來往港九新界的多個地點。大埔設有多間著名學府,包括香港墨爾文國際學校、挪威國際學校、香港日本人學校大埔分校。全港新盤應有盡有
資料來源: House730

