1 Plantation Road第1期上載樓書 設8幢洋房 最大6122呎|山頂豪宅
由九龍倉集團持有、會德豐地產負責發展及銷售的山頂「1 Plantation Road」第1期已上載樓書,第1期提供8幢獨立洋房,實用面積由5,513至6,122方呎。
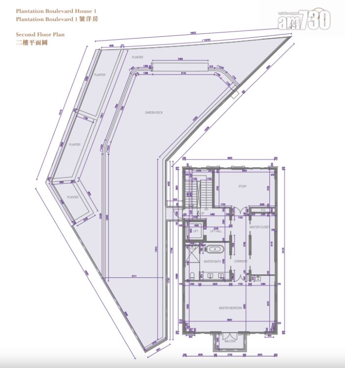
根據樓書顯示,第1期提供8幢獨立洋房,每幢樓高3層並附設地庫、花園及天台,四房間隔,實用面積由5,513至6,122方呎。
面積最細的為9號洋房,實用面積5,513方呎,地下為客廳區域,設有前院及花園,1樓及2樓為睡房區域,其中2樓全層為主人房、書房及衣帽間。而面積最大為1號洋房,實用面積6,122平方呎,間隔與9號洋房一樣,地下同樣設有前院及花園,1樓及2樓為睡房區域,當中2樓再設有一個巨型花園。
發展商指,首批只會推出少量獨立洋房應市。
資料來源:am730