平面圖分析|DOUBLE COAST I 主打2房 開則多多有何分別?

由會德豐地產、恒地 (00012)、中國海外 (00688) 及新世界 (00017) 合作發展的DOUBLE COAST,其第1期DOUBLE COAST I,日前已上載樓書,《地產站》現為大家分析一下項目的平面圖,提供最適切的入市攻略!

基本資料及布局

DOUBLE COAST I 由兩座住宅大廈組成,第3座住宅樓層最高達39樓,第5座最高則為6樓,合共提供361伙,戶型由開放式至4房,實用面積介乎265至1,275平方呎,目前已屆現樓。另外,3座設3部電梯連接各層,5座則設兩部。

景觀方面,向東北的單位可前望海濱長廊一帶,以及東九龍內海海景;向西南一帶則前望附近樓景及街景。

1
previous arrow
next arrow
 

【DOUBLE COAST I 基本資料】

發展項目名稱 DOUBLE COAST I
地址 啟德承豐道19號
座數 2座
單位數目 361伙
戶型 開放式至4房
實用面積 265至1,275平方呎
備註 項目已屆現樓
發展商 會德豐地產、恒地、中國海外及新世界
示範單位地址 尖沙咀海港城港威大廈2座9樓
DOUBLE COAST I 專頁

【DOUBLE COAST I 戶型分布表】

戶型 實用面積 (平方呎) 伙數 (佔比)
開放式 265 33 (9%)
1房 267至335 104 (29%)
2房 390至480 194 (54%)
3房 609至627 28 (7.5%)
4房 1,260至1,275 2 (0.5%)
總數 361 (100%)

開放式

DOUBLE COAST I 的開放式單位僅見於3座1至38樓G室,實用面積265平方呎,屬全盤面積最細的單位。大門旁邊設有開放式廚房,對面則為浴室所在,不過浴室門口乃面向廳堂。值得一提,因浴室空間有限,洗手盆乃設於客廳。廳堂空間四正,外接露台。

1
previous arrow
next arrow
 

1房

DOUBLE COAST I 的標準1房單位均為連套房設計,分布於3座1樓F及H室、2至7樓E、F、H室、8至38樓F、H、L室,以及5座2至5樓C及D室。除3座F室的開放式廚房屬長形設計,其餘單位的開放式廚房均以L形開則。每戶廳房同向,空間同樣四正,當中廳堂外接「三合一」露台。

1
previous arrow
next arrow
 

2房

2房戶屬 DOUBLE COAST I 的主打戶型,大致分為純2房,以及2房連儲物室兩種,均設開放式廚房之餘,客廳亦外接露台。當中標準純2房戶分布於第3座1至7樓J室、8至38樓A、C、J及K室、39樓C室,第5座2至5樓A、B及E室。當中第5座B及E室僅主人房與客廳同向東北,房間分別向西北及東南;其餘所有單位均為兩房與廳同向。另外,純2房戶的開放式廚房均位處大門旁邊,並以L形開則。

2房連儲物室戶型則見於第3座1至3樓D室、5至39樓D及E室,實用面積介乎455至480平方呎。當中3座D室的大門兩邊分別設有以趟門開關的儲物室,以及長形開放式廚房;廳區以日字形開則,外接露台。2房及浴室均由走廊連接,當中兩間房間均與廳同向。

3座E室的大門兩邊分別設L形開放式廚房及浴室,沒有走廊,兩房呈「蝴蝶形」開則,分布客廳兩旁,當中睡房1後方設有儲物室,同樣以趟門開關。

1
previous arrow
next arrow
 

3房

DOUBLE COAST I 的3房戶僅見於第3座8至38樓B室,實用面積介乎609至627平方呎。大門旁邊設L形開放式廚房,內接日字形大廳,外連露台。3間房間一字排開,與廳同向,當中主人套房設預留衣櫃位。

1
previous arrow
next arrow
 

特色戶

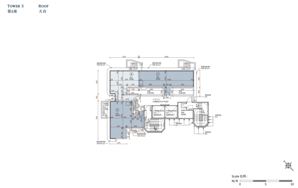
DOUBLE COAST I 合共設有11伙特色戶,包括6伙連平台戶及5伙頂層連天台戶。連平台戶分布於3座1樓E室及5座1樓A至E室 (全層),平台面積介乎59至336平方呎。值得一提的是,5座1樓E室,實用面積444平方呎2房,外接277平方呎平台;單位設兩個平台,分別連接主人房及客廳,以及比鄰開放式廚房。

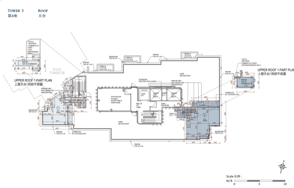
連天台單位則見於3座39樓A及F室,以及5座6樓A至C室 (全層),天台面積介乎273至402平方呎。當中3座39樓A室,實用面積1,275平方呎,設4房雙套、梗廚及工作間連廁,外接264平方呎平台及402平方呎天台,成為整個DOUBLE COAST I 面積最大的單位。另外,3座39樓F室,實用面積1,260平方呎,設4房雙套、梗廚、儲物室及工作間連廁,外接120平方呎平台及316平方呎天台。該單位的儲物室位於內置樓梯下方。

此外,3座39樓A及F室,天台均由內置樓梯所連接;5座6樓A至C室的天台則由外置樓梯連接。

資料來源:經濟日報地產站