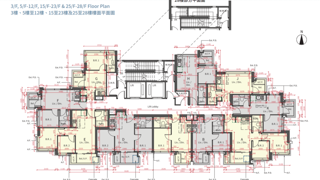
平面圖分析│薈鳴1房佔5成半最多 特色戶「平台大過屋」200呎配逾千呎平台

由宏安地產 (01243) 發展的黃大仙單幢盤薈鳴,已於本周二 (1月2日) 上載樓書,並於本周三 (1月3日) 對傳媒開放兩個示範單位,最快或於本周內公布首張價單。《地產站》現為大家分析一下薈鳴平面圖,方便一眾薈鳴準買家趁減息前「撈底」,盡享新盤「頭啖湯」之利!
基本資料及介紹
薈鳴坐落於黃大仙鳴鳳街28號,單幢設計,提供230伙,戶型由開放式至2房,實用面積則由178至375平方呎,預計關鍵日期為2025年4月30日。景觀方面,薈鳴整體以附近樓景及街景為主。
薈鳴所有住宅單位分布於2至28樓之間,由兩部升降機連接各層。當中2樓及28樓分別設有10伙連平台單位,以及10伙連天台單位;至於3至27樓則為分層單位,實用面積介乎200至375平方呎。另外,薈鳴所有單位一律設有開放式廚房。
開放式
薈鳴的分層開放式單位共有21伙,位處3至27樓J室,佔總伙數約9%,實用面積一律200平方呎。單位大門左邊即為浴室所在,盡頭左方則為開放式廚房。大廳間隔四正,設大窗,座向北方;另一端則外連露台,向東。
1房
薈鳴戶型以1房主導,設有126伙,佔總伙數達55%,分布於3至27樓B、C、F、G、H及K室,實用面積介乎226至261平方呎,開則亦不盡相同。當中B至D室,大門旁邊即為浴室所在,另一邊則為L形開則的開放式廚房,空間大致足夠;容廳旁設有房間,與廳同向;當中C及D室的房間設有預留衣櫃位。
至於其餘單位的開放式廚房則為長形設計,當中F室及G室的露台、睡房及大門剛好分布在大廳三邊,形成「三門歸心」的格局;G室更為全盤唯一屬1房 (連套房) 間隔的單位,其浴室位處睡房內,並以趟門連接房間。H室的浴室則位於大門旁邊,並以趟門設計,呈長窄形開則,空間較窄。
2房
薈鳴的2房單位共有63伙,佔比約27%;分布於3樓至27樓A、D及E室,實用面積350至375平方呎,3款單位的大廳均外連「三合一露台」。當中3至28樓E室 (註:28樓E室為頂層連天台特色戶),實用面積375平方呎,屬薈鳴全盤面積最大的單位。開則方面,D室為唯一兩房於客廳兩旁左右分布的單位,可節省走廊位,兩房面積亦相若;當中睡房1設有預留衣櫃位。
至於A室及E室均有走廊連接兩房,當中A室設有鞋櫃位,浴室則位處睡房2對面;E室浴室則位於大門旁邊。另外,兩個單位的主人房均設有L形落地大玻璃,有助提升採光及擴闊視野。
特色單位
薈鳴的特色單位分布於2樓及28樓,分別設10伙連平台單位,以及10伙頂層連天台單位。連平台單位方面,平台面積介乎53至1,251平方呎,當中一半單位均有「平台大過屋」的情況。其中,2樓J室,實用面積178平方呎,採開放式間隔,外連230平方呎平台,成為薈鳴面積最細的單位;至於2樓G室,實用面積207平方呎,採1房 (連套房) 間隔,平台面積廣達1,251平方呎,兩者面積相差逾6倍。
連天台單位則位於28樓,開則與一般分層戶無異,並以外置樓梯連接天台;當中28樓E室,實用面積375平方呎2房,外連256平方呎平台。
資料來源:經濟日報地產站


















