【平面圖分析】啟德海灣第1期2房戶佔5成半 花款多多點揀好?

由嘉華 (00173)、會德豐及中國海外 (00688) 合作發展的啟德海灣第1期,已於本周四 (20日) 上載樓書及開放3個示範單位,最快可於下周開價。發展商更預告,啟德海灣第1期首批將以「驚喜價」推出不少於兩成單位,即約204伙,直言「明益買家」。《地產站》現為大家分析一下啟德海灣第1期的平面圖,並提供最適切的啟德海灣第1期入市攻略!
基本資料及景觀
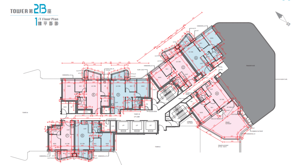
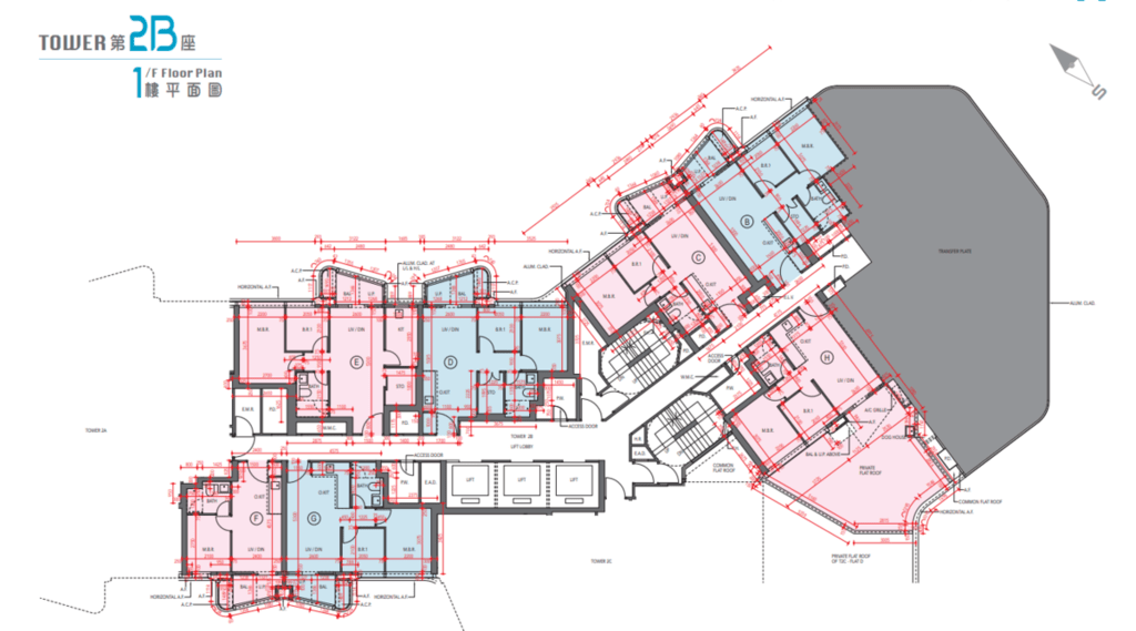
樓書顯示,啟德海灣坐落於承豐道15號,分兩期發展,提供2,138伙,成為啟德一帶供應最多的新盤之一;當中啟德海灣第1期屬項目的第2座,細分第2A座、第2B座及第2C座3座相連住宅大廈,合共提供1,017伙。啟德海灣第1期戶型由1房至3房套及工作間連廁,另設8伙特色單位,實用面積介乎269至771平方呎;當中標準戶的面積介乎288至771平方呎。另外,啟德海灣第1期的預計關鍵日期為2025年3月31日,第2期則為2025年6月30日,兩者相差約3個月。
景觀方面,項目以向東北的單位最為優質,可前望東九龍一帶的內海景,戶型多為2房連儲物室及3房;其餘向西單位大多前望內園或承豐道一帶街景。
1房
啟德海灣第1期的標準1房單位共有388伙,可分為純1房及1房 (連套房) 兩種。當中純1房戶見於第2A座1至35樓N室,實用面積288平方呎,屬啟德海灣第1期全盤面積最細的單位。單位設L形開放式廚房,房間及浴室一左一右分布客廳兩旁,客廳外接三合一露台。另外,2A座18樓E室亦為純1房單位,開則與同座其他E單位大同小異,主要分別在於其只設一間特大主人房。
啟德海灣第1期其餘1房戶一律為連套房設計,分布於2A座G、H、J室,2B座F室,以及2C座D、E、G、H、J、K室,開則大同小異,大門旁邊設有長形開放式廚房,旁接四正房間,與客廳座向相同,客廳外連三合一露台。
2房
啟德海灣第1期以2房戶型為主打,佔全盤約55%;可細分為純2房單位、2房連儲物室及2房連工作間3種戶型。純2房單位共有326伙,可細分為連梗廚及連開放式廚房兩款。當中第2A座M室,第2C座A及B室均設梗廚,當中第2C座A室均設玄關。至於設開放式廚房的2房單位,其開放式廚房可細分為L形及長方形兩款,並以L形開廚的儲物及備餐空間較多。
至於2房連儲物室或工作間單位共有238伙,當中2房連儲物室戶分布於2A座B、C、D室,2B座B、D、E及J室,所有單位房間均與廳同向。其中,2A座C室的儲物室比鄰細睡房,且設有窗戶,屬唯一儲物室有窗的單位,廳堂一隅設有長形開放式廚房;至於2B座B及D室的儲物室位處睡房1對面,以雙門開關,沒有窗戶,亦設有長形開放式廚房。其餘2房連儲物室單位均設梗廚,旁邊設有儲物室,儲物室採用趟門開關。
2房連工作間標準單位僅見於2C座C室,實用面積551平方呎,大門左邊設梗廚,內接四正工作間。至於兩房由走廊連接,與客廳座向相同;主人房內設有預留衣櫃位。
3房
啟德海灣第1期的標準3房戶分別位於2A座及2B座A室。當中2A座A室設有3房1套及梗廚,內接工作間連廁,實用面積771平方呎,屬全盤面積最大的單位;其3間房間一字排開,由長走廊連接,與廳同向。
至於2B座A室屬3房套間隔,設開放式廚房,實用面積586平方呎。大門右邊設長形開放式廚房及主人套房,且走廊則連接兩間客房,當中睡房2並非與廳同向。
特色單位
啟德海灣第1期的特色戶可分為連平台戶及連天台戶兩種,合共有8伙。連平台單位共有6伙,分別位於2B座1樓H室,以及2C座1樓A、B、C、D及M室;當中2C座1樓M室,實用面積269平方呎,採1房 (連套房) 間隔,屬啟德海灣第1期全盤面積最細的單位
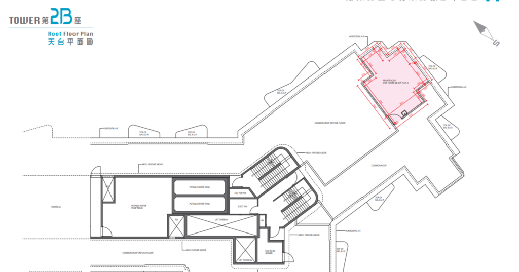
啟德海灣第1期的連天台單位僅設兩伙,分別為2A座35樓A室,以及2B座35樓A室,兩者同為實用面積771平方呎的3房套連梗廚及儲物室單位,開則與一般單位無異,並通過外置樓梯,連接面積分別466平方呎及367平方呎的天台。
資料來源:經濟日報地產站























