【揀樓攻略】啟德澐璟平面圖分析 海景單位點揀好?

由華潤置地 (海外) 及保利置業 (00119) 共同發展的啟德澐璟,早前已上載樓書,《地產站》現為大家分析一下其平面圖,為一眾澐璟準買家提供入市攻略!
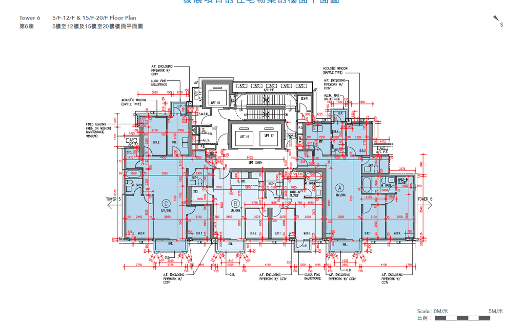
屋苑基本布局及景觀分布
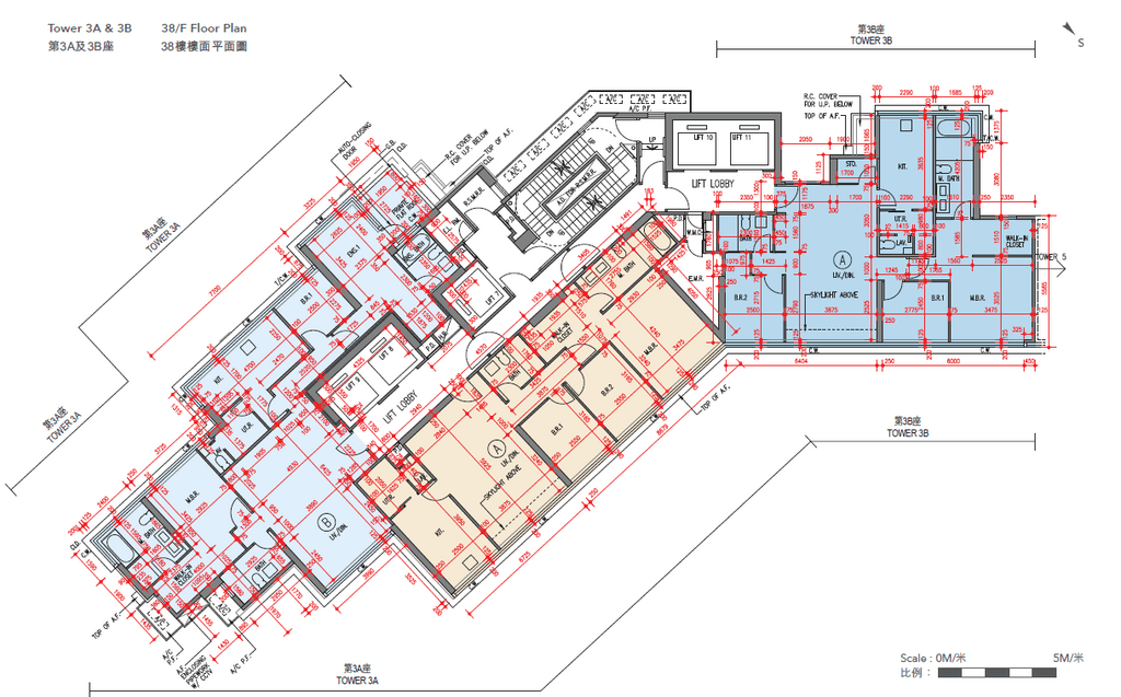
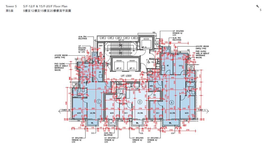
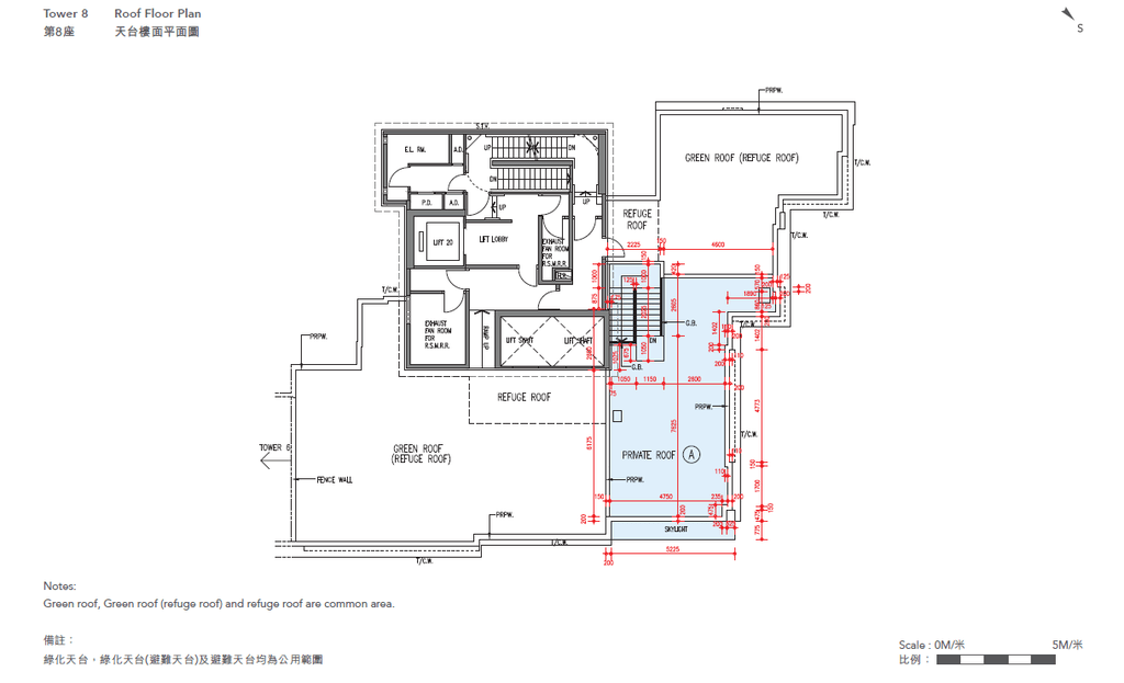
澐璟位於啟德承富里2號,由6座住宅大廈及3幢低座物業組成,合共提供582伙;戶型由1至4房,實用面積介乎371至4,850平方呎,預計關鍵日期為2024年12月31日。另外,澐璟設有300多個車位,比例為1:0.64,供應充足。另外,每座高座大廈的走火通道均設有額外升降機。
澐璟其中一大賣點,是全盤大部分單位均享開闊維港海景,當中尤以6座低座物業,以及第1座及第2座位置上最為臨海,全數均享開闊海景。至於位處較後排的3A座至8座,向北或東北單位主要外望承豐道一帶的街景及市景,至於向南或西南單位,則外望內園泳池為主,樓層較高的單位更可穿過前方的低座單位,兼享維港海景。
1房至2房
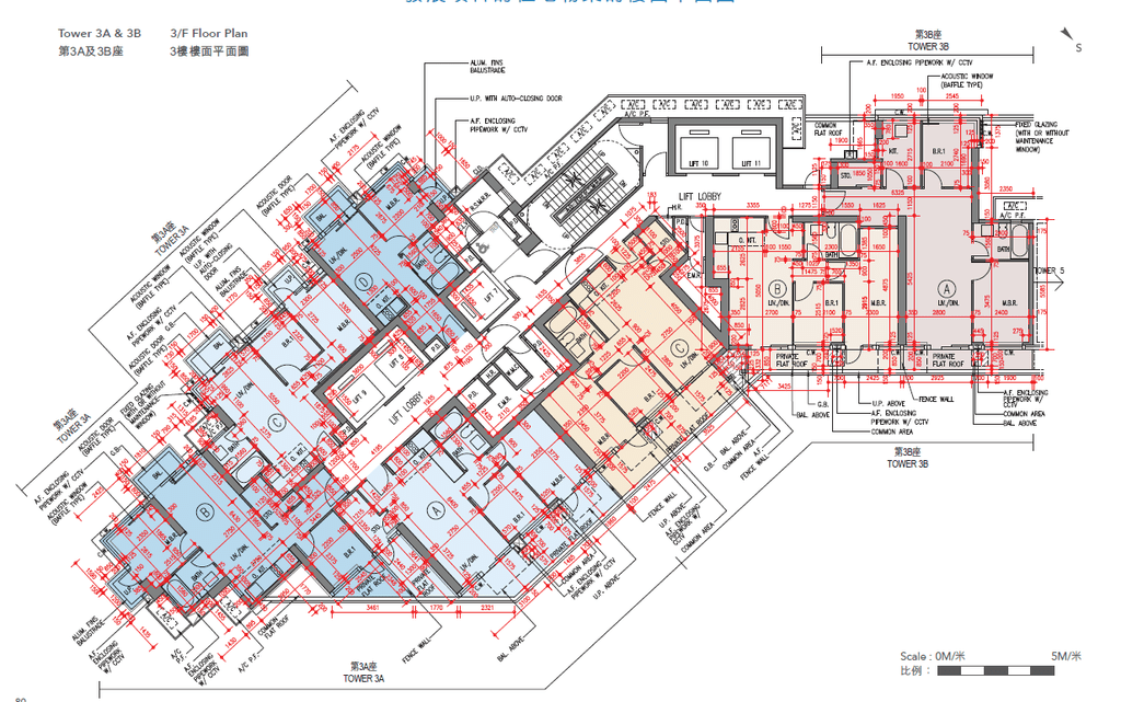
澐璟分層戶由1至4房俱備,當中標準1房戶僅見於3A座3至37樓D室,實用面積371平方呎,屬1房 (連套房) 間隔,外望承豐道一帶街景。大門前為玄關所在,左方已預留空間放置鞋櫃。至於大廳及房間均相當四正,當中客廳外連露台。房間間隔四正,並設轉角大窗,提升採光度;亦連有工作平台,雖可改善房內通風,惟房內睡床擺位需要留意。
澐璟2房戶可分為純2房及2房連儲物室兩種,當中前者位處3A座C室,以及3B座B室,實用面積分別為509平方呎及488平方呎。兩者同樣入屋即見日字形客飯廳,外連露台,由中央的走廊位分隔兩廳空間;而兩間房間由走廊連接,坐向與客廳一致。兩者主要分別在於景觀,3A座C室座向東北,外望承豐道一帶;而3B座B室座向南方,主要外望內園泳池,高層或享海景。
至於澐璟的2房連儲物室單位分布於3A座A及B室、3B座A及C室,以及5座B及C室,實用面積介乎554至659平方呎。除3B座A室及5座C室設有梗廚外,其餘單位一律設開放式廚房。開則方面亦不盡相同。3A座B室及3B座A室設有玄關,大門旁邊均已預留位置安放鞋櫃。前方亦設有儲物室,以趟門開關,當中3A座B室的儲物室對面更是細睡房所在。其餘單位均不設玄關,儲物室直接設於大門旁邊,亦沒有預留鞋櫃位。另外,3A座A室、3B座C室及5座B室,兩間睡房均由走廊連接,廳房同向,廳堂空間亦相對實用;至於其餘單位雖沒有走廊位,但可能形成多門歸心的格局;當中5座C室,不論廚房、儲物室、浴室,房門及露台玻璃門均包圍著大廳,形成「六門歸心」的格局,傢俬擺位頗考功夫。
3房
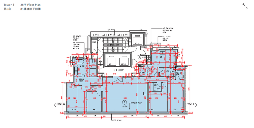
澐璟的3房單位坐落於3A座38樓A及B室、3B座38樓B室、5座A室、6座A及C室,以及8座A及B室,分別為3房套連儲物室、3房套及工作間連廁,以及純3房套間隔,全數備有梗廚。當中6座A室其中兩房 (包括主人套房) 均與廳同向,由走廊連接,同享內園景觀;5座A室及6座C室均沒有走廊位,可用空間較多,廳區空間較闊;惟有多門歸心的情況,擺位上需花點心思。
至於8座A及B室一梯兩伙,每戶均享私家電梯大堂,盡享高私隱度。當中8座A室實用面積1,525平方呎,3房均與廳同向,位處大門左邊一列排開;惟需注意,主人套房由浴室至房中央備有長窄走廊,長約4.71米。而且廳區空間較為廣闊,且備有多面落地大窗,採光能力較佳。至於8座B室實用面積1,185平方呎,主人套房及客房均與廳同向,惟廳區空間較前者為細。
另外,3A座38樓A室及3B座38樓A室均為3房套及工作間連廁間隔,3A座38樓B室則為3房雙套及工作間連廁間隔。當中後者實用面積1,334平方呎,主人套房更外連約46呎平台。
4房及高座特色單位
澐璟4房戶集中在1座及2座A及B室,每層只有兩伙,且備有私家電梯大堂,私隱度高;加上該兩座均前臨海旁,且不受低座單位所阻,盡享無遮擋的維港海景。當中1座3至35樓A室屬4房3套間隔,其餘一律為4房雙套間隔。
澐璟的高座特色單位可分為連平台及頂層連天台兩款,當中面積最大的連平台單位,為1座2樓A室,實用面積1,985平方呎,4房雙套間隔,外連197平方呎平台;至於最大的連天台單位,位處1座36至37樓A室,實用面積3,442平方呎,設3間套房,下層為廳區、廚房、儲物室及工作間所在,並經內置樓梯通種房間及天台。平台面積合共368平方呎,分別位處客廳外及其中一間睡房外;單位亦外連354呎天台。
低座單位
低座單位共有6伙,全數為4套房間隔,且位處臨海位置。所有低座單位的地庫一律樓高6層,並設私人升降機直通各層。地庫設雙車位,2樓設有工作間連廁,部分或再設儲物室,3樓為客廳、廚房及花園所在,花園一律設泳池。5樓設有3間套房,6樓則為主人套房、浴室及衣帽間所在;除了Mansion B (HARBOUR BREEZE) Villa 3僅設一個衣帽間,其餘一律設雙衣帽間。另外,所有低座單位的天台均設有按摩浴缸。
花園及天台最為寬闊的,為Mansion A (HARBOUR LIGHT) Villa 1, 實用面積4,837平方呎,外連花園面達1,097平方呎,天台亦有826平方呎,亦有60平方呎平台;至於Mansion C (HARBOUR WAVE) Villa 8,實用面積4,850平方呎,外連1,050平方呎花園、135平方呎平台,以及795平方呎天台。
資料來源:香港經濟日報地產站


















































