【上載樓書】ONE INNOVALE-Archway兩座20層高住宅組成 最細205呎起

恒地(00012)發展的粉嶺新盤ONE INNOVALE第1期ONE INNOVALE-Archway剛上載樓書,由兩座20層高住宅大廈組成,提供603伙,最細實用面積205平方呎起,屬於開放式單位。
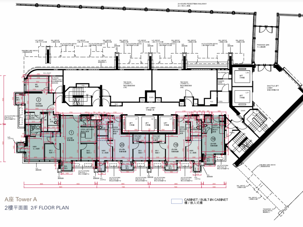
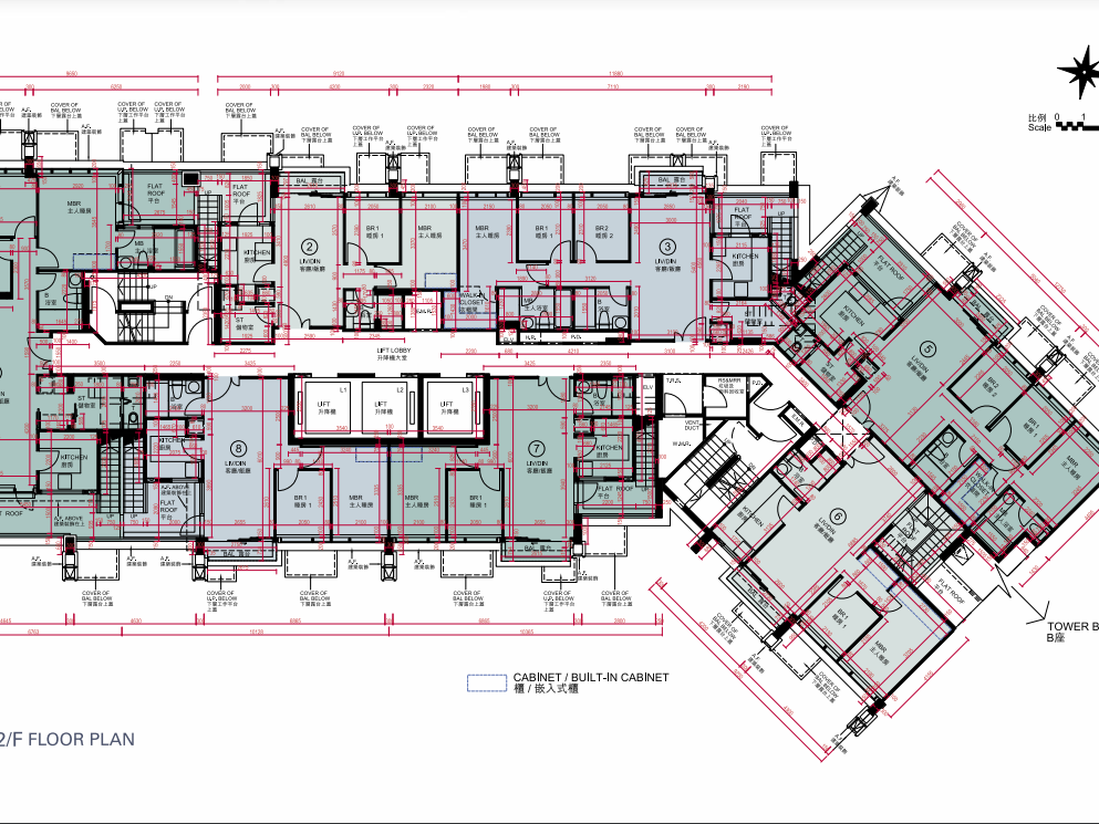
ONE INNOVALE-Archway分A及B座,A座標準樓層一梯17伙,共享3部升降機;B座標準樓層則有19伙,同樣共享3部升降機。項目戶型涵蓋開放式至3房,實用面積205至898平方呎,佔409伙或67.8%屬1房單位,緊接為2房,設100伙,佔全盤16.6%。
全盤面積最細單位屬B座地下7室,實用面積205平方呎,開放式間隔,採開放式廚房,客飯廳外連131平方呎花園。
而最大單位位處A座22樓頂層1室,向南,實用面積898平方呎,3房間隔,連173平方呎平台及869平方呎天台,當中主人套房可通往其中一個平台。
至於項目標準單位實用面積由208平方呎起跳,最細標準單位為A座的18室,開放式間隔。
ONE INNOVALE-Archway提供123個私家車位及16個電單車位,項目預計關鍵日期為2023年3月31日,樓花期約8個月。
另外,據布局圖顯示,ONE INNOVALE分3期發展,第1期ONE INNOVALE-Archway由A及B座組成,而第二期僅有C座,而第3期則有D及E座。發展商早前表示,ONE INNOVALE共提供約1,600伙。
資料來源:經濟日報地產站
One Innovale 第1期 新盤概覽
項目地址:粉嶺馬適路8號
大廈座數:2座
單位總數:603伙
校網:小學81校網
預計落成日期:2022年7月15日



















