【樓書曝光】凱柏峰 II上載樓書 標準戶最細337呎起

新盤持續火熱,發展商急不及待推盤,信置(00083)、嘉華(00173)及招商局置地(00978)合作的將軍澳日出康城凱柏峰 II,剛上載樓書,標準戶最細337呎起。
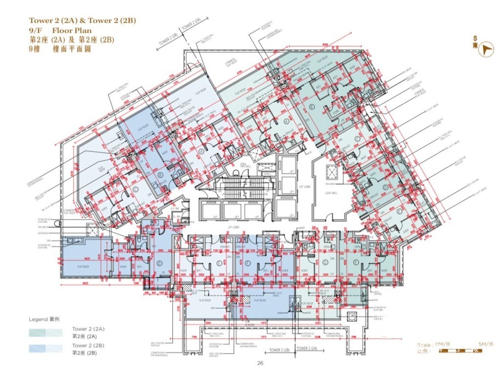
根據樓書,凱柏峰 II為一座57層高住宅大廈,細分2A及2B座,提供644伙,涵蓋1至3房,標準分層單位佔624伙,實用面積337至719平方呎,當中以2房標準戶佔336伙或52%最多;項目另設20伙特色戶,實用面積299至989平方呎。
全盤最細標準戶位於2B座的B室,實用面積337平方呎,1房間隔,採開放式廚房,而面積最大標準單位屬2A座的B室,實用面積719平方呎,3房1套連儲物室間隔,3房同向。






