柏瓏II上載樓書 首度提供的4房樓王「柏瓏至尊」圖則曝光

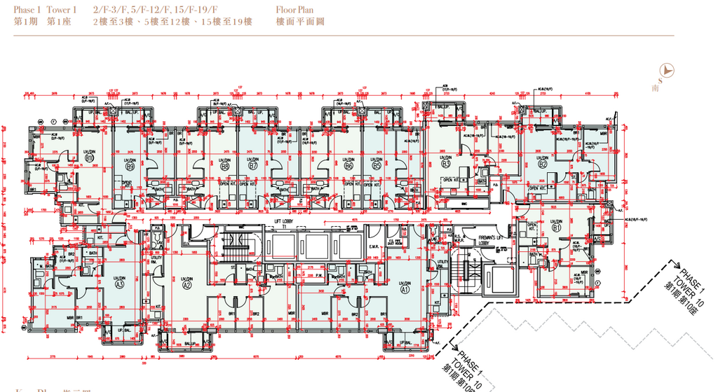
信置(00083)、嘉華(00173)及中國海外(00688)合作發展的元朗錦上路柏瓏I熱賣,短短兩輪勁沽710伙,佔全盤供應715伙約99.3%。發展商打鐵趁熱加快部署1B期柏瓏II銷售,剛公布柏瓏II樓書,當中首度提供的4房樓王「柏瓏至尊」圖則曝光,共31伙,分布於8座的A1室及9座的A1室。

根據樓書顯示,柏瓏II由5座組成,共805伙,實用面積351至977平方呎,戶型1至4房,首度提供的4房樓王位於8座的A1室及9座的A1室,實用面積977及974平方呎,共有31伙,參考8座12樓A1室,實用面積977平方呎,4房1套連工作間間隔,客飯廳呈長形,露台及工作平台合併為51平方呎空間,4房睡房四正。

至於項目最細單位位於1座的B5及B9室,實用面積351平方呎,1房間隔,採開放式廚房設計。

發展商表示,柏瓏II戶型多元化,除柏瓏I所提供的1房至3房單位,更首度提供4房1套連工作間間隔,實用面積974至977平方呎。

項目設大型園林住客會所「LAKE MAYFAIR」,花園園林及遊樂空間達逾26萬平方呎,另雙會所「LAKE MAYFAIR」面積更達逾3.7萬平方呎,提供多項多元化設施。

據了解,柏瓏II主打2房單位,佔453伙,而1房及3房佔有152伙及169伙,餘下31伙屬4房單位。

1
previous arrow
next arrow
1
2
3
4
5
6
7
8
9
10
11
12
13
14
previous arrow
next arrow

資料來源:經濟日報地產站