山頂洋房新盤上載樓書 最大洋房達4740方呎
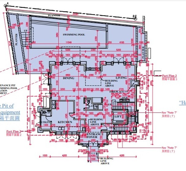
豪宅新盤不乏承接,山頂有新盤登場。據一手銷售資訊網資料,由地產代理監管局前主席陳韻雲持有、位於山頂道20號的TWENTY PEAK ROAD BY V,今日(25日)正式上載樓書。項目由4座洋房組成,實用面積介乎3,722方呎至4,740方呎。
其中,洋房1號面積最大,樓高3層,實用面積有4,740方呎,採五房間隔,連355方呎平台、1,472方呎花園及1,085方呎天台。洋房地庫設有2個停車位,內籠設有私人升降機,飯廳對出的戶外空間設有游泳池。
豪宅新盤不乏承接,山頂有新盤登場。據一手銷售資訊網資料,由地產代理監管局前主席陳韻雲持有、位於山頂道20號的TWENTY PEAK ROAD BY V,今日(25日)正式上載樓書。項目由4座洋房組成,實用面積介乎3,722方呎至4,740方呎。
其中,洋房1號面積最大,樓高3層,實用面積有4,740方呎,採五房間隔,連355方呎平台、1,472方呎花園及1,085方呎天台。洋房地庫設有2個停車位,內籠設有私人升降機,飯廳對出的戶外空間設有游泳池。