鴨脷洲大街逸南平面圖分析 1房爭22呎空間 有露台好定無露台好?

恒基發展鴨脷洲大街71號全新盤逸南樓書已公布,逸南平面圖已曝光,涉及138伙。逸南戶型開放式至1房單位,實用面積183至334平方呎。地產站為各位讀者分析一下,逸南各單位的平面圖及布局!逸南預計關鍵日期為2022年10月31日。
【逸南5至28樓平面圖】
逸南主要標準單位集中5至28樓標準樓層,1層6伙單位設計,全屬開放式及1房單位,當中15樓或以下、16樓或以上的個別單位平面圖開則稍有分別。
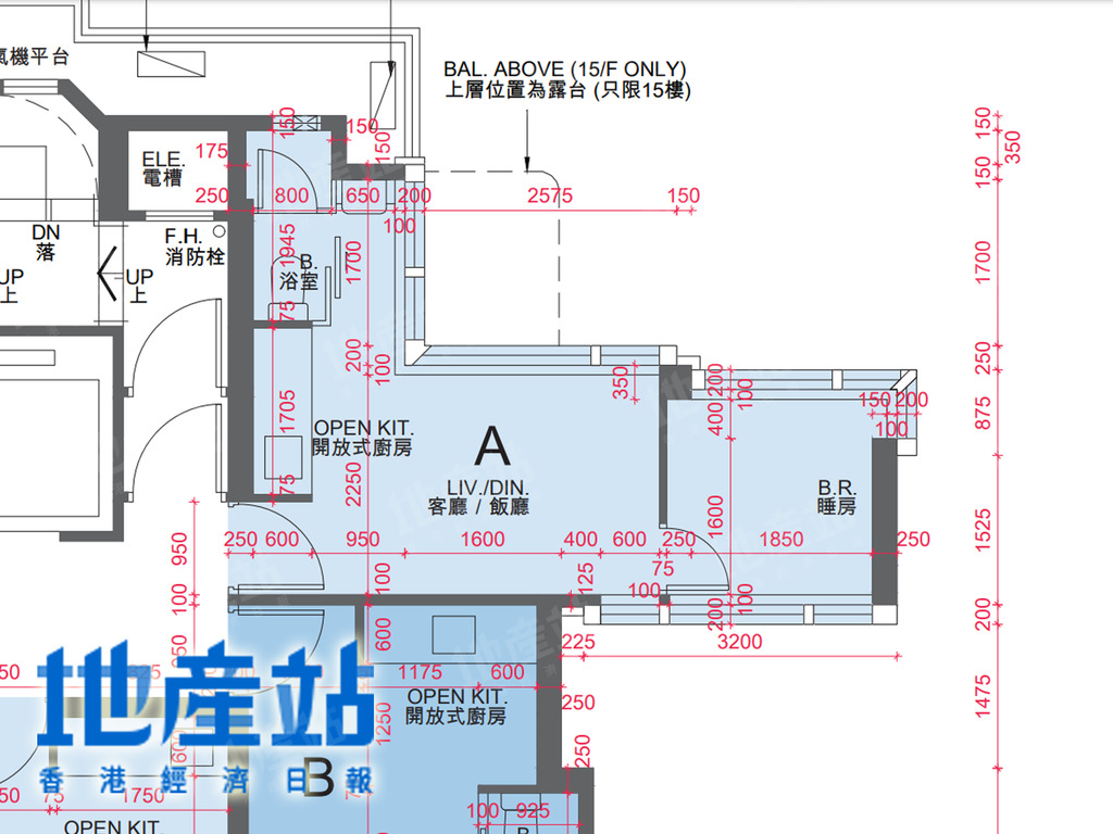
逸南A室及F室單位開則類似,僅分左右相反布局,同為1房間隔,5至15樓面積242平方呎。經大門入屋有個小玄關位,大門正對睡房門,信風水的話可能要留意一下!不計玄關的話,廳區長約3.5米及闊約2.25米,廳區連廚廁位置呈L形,廳區採光主要靠L形廣角窗,另一邊則有小氣窗。開放式廚房長形設計,置於近玄關位。單位最大特別之處是,浴室僅有坐廁及方形淋浴間,面盤置於浴室外。
值得一提,16至28樓A室及F室面積264平方呎,開則基本近乎一樣,只是增添22平方呎露台(242平方呎加22平方呎),露台置於近面盤位置,方便住戶在露台晾曬衣物等。本身低層單位空間較窄,可動度不算高,故中高層增添露台,靈活度較高。
逸南B室及E室面積186平方呎,同樣開則一樣僅左右相反,大門正望廚房牆身,沒有正對房門、廚房門等問題,轉身便是廳區,長約3.4米及闊約2.35米。開放式廚房位於角落位置,旁邊牆身較厚,浴室採趟門設計,淋浴間有窗戶。廳區外連22平方呎露台,扣除露台面積,單位實際空間約164平方呎。
逸南C室及D室面積183平方呎,同樣開則一樣僅左右相反,屬於物業最細單位戶型,本身布局與B、E室有些微相似,只是大門直入廳區,入屋玄關後,一邊設有一個凹位,另一邊為開放式廚房。廳區長約3.27米及闊約2.35米。開放式廚房位於角落位置,旁邊牆身較厚,浴室採趟門設計,淋浴間靠另一邊,坐廁背靠活窗。廳區外連22平方呎露台,扣除露台面積,單位實際空間約161平方呎。

















