【柏傲莊III】平面圖分析 最細1房單位連238呎特大平台 用作布置小花園?

大圍站柏傲莊最後一期柏傲莊III已正式上載樓書,項目的平面圖正式曝光,合共892伙,關鍵日期為2023年6月30日。
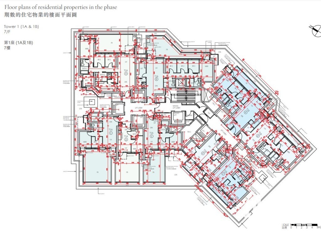
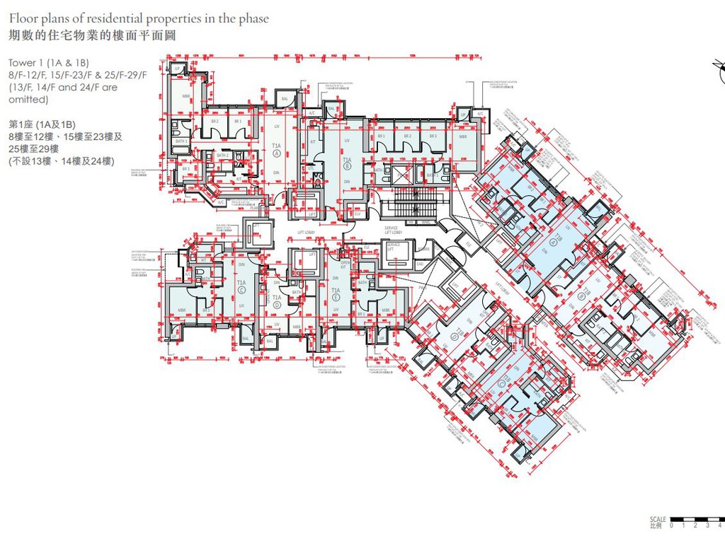
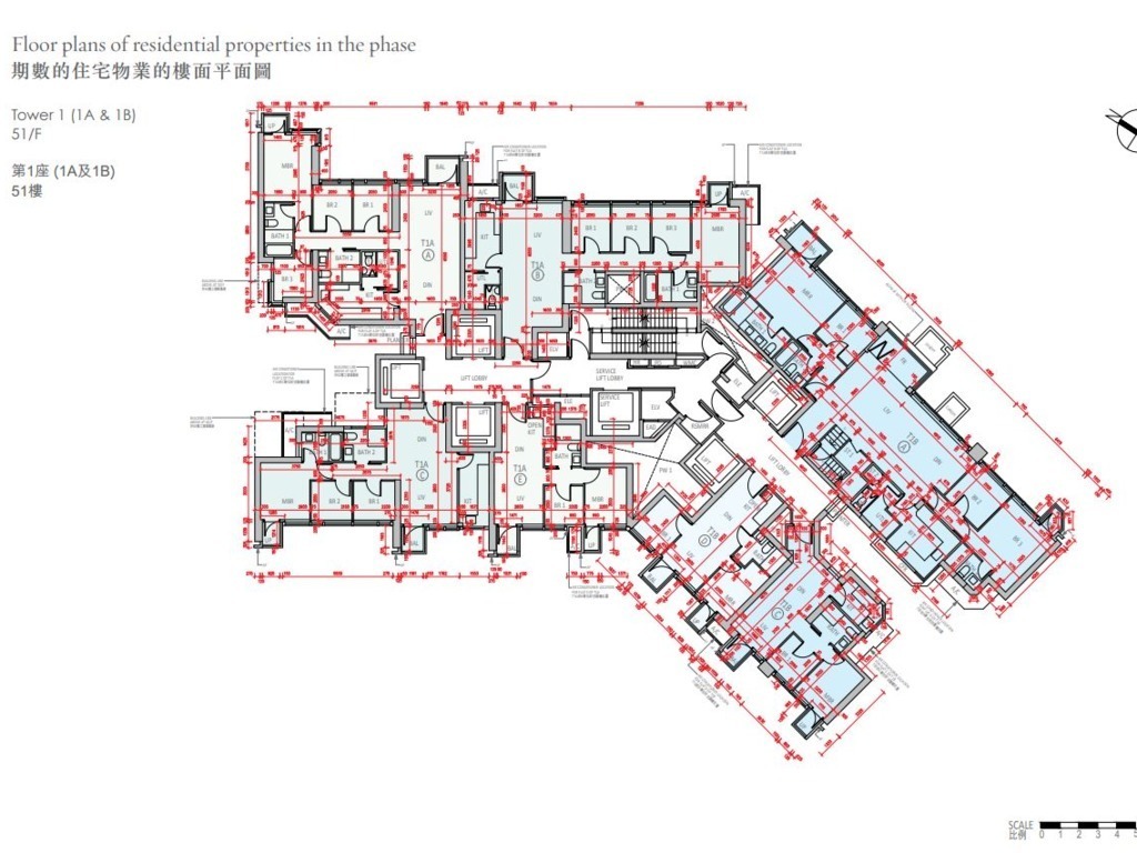
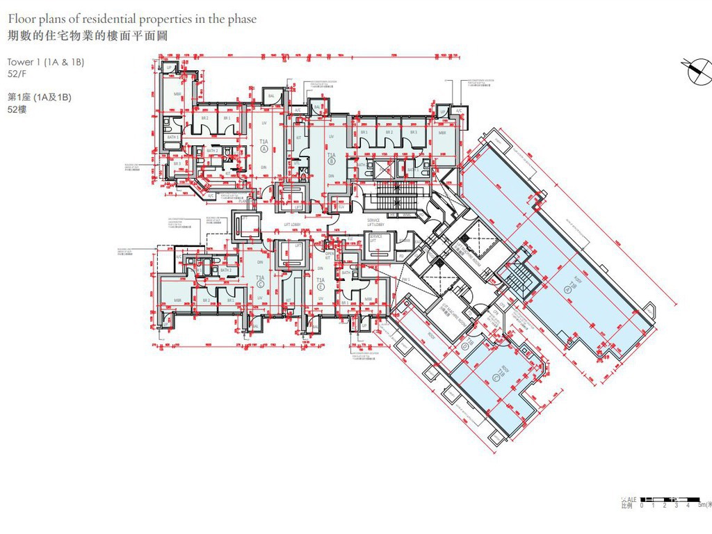
根據樓書,柏傲莊III分2座,分別為第1A、第1B及第8A及第8B座,實用面積由285至1695平方呎,戶型涵蓋1房至4房。以1A及1B座7樓至29樓為例,兩座相通,採1梯9伙設計,並設有5部升降機,而31至50樓則屬1梯8伙。
至於8A及8B座密度較高,以兩座8至39樓為例,屬1梯12伙設計,並設7部升降機;而41至60樓為1梯10伙。
若抽取1A及1B座單位,8至29樓供應2房單位為主,每層有4伙2房、2伙3房、2伙4房,及1伙1房,而1房只分布在1A座D室。不過,1A及1B座的31樓及對上的單位,則沒有1房戶型供應,最細只有2房。
相反,8A及8B座的1房供應較多,全座均有1房供應,並主要分布於8A座E室及8B座F室。但是,8A座41樓或以上則沒有1房供應。另外,8A及8B座提供2及3房為主,並主要分布在7樓至60樓。
值得留意的是,全盤最細的單位是1A座7樓D室,實用面積285平方呎,屬1房設計,連238平方呎平台,相當於單位面積約8成,適合想在單位至布置小花園的準買家,而對上8樓D室實用面積307平方呎,如果不連22平方呎露台的話,室內實用面積其實跟樓下的7樓D室相同,到底要平台還是要露台就視乎各人口味。
而最大單位分布於第1A座62樓A室,實用面積1695平方呎,屬4房間隔,並附設1262平方呎天台。
>
資料來源:香港經濟日報 地產站




















