【港島南岸第1期】黃竹坑站晉環平面圖分析 罕見612呎雙套房2房!換樓留意639呎入場版3房!

香葉道11號港鐵黃竹坑站上蓋全新盤港島南岸第1期晉環樓書已公布,晉環平面圖已曝光,涉及800伙。晉環戶型開放式至5房單位,實用面積289至2084平方呎。地產站為各位讀者分析一下,晉環各單位的平面圖及布局!

【港島南岸晉環第1座】

晉環屬於港島南岸第1座、第2座住宅大樓,其中第1座標準單位集中6至42樓,共5部升降機,開放式至4房單位均有供應。開放式單位只見於1B座B室,面積290平方呎,入屋為玄關,左邊為浴室,客飯廳方正,連接22平方呎露台。

1房單位選擇不少,但集中1A座6至40樓D室、1B座6至22樓G至H室。1A座D室入屋為雜角玄關,大廳連長形,外連接露台,露台反方為開放式廚房,比鄰廳區為套房,浴室淋浴間外連工作平台;1B座6至22樓G至H室望東南偏南方,386至392平方呎,面積相近,玄關一邊為開放式廚房,另一邊屬浴室,浴室採兩邊門,趟門連接睡房,大廳四正,露台橫跨客廳與睡房。

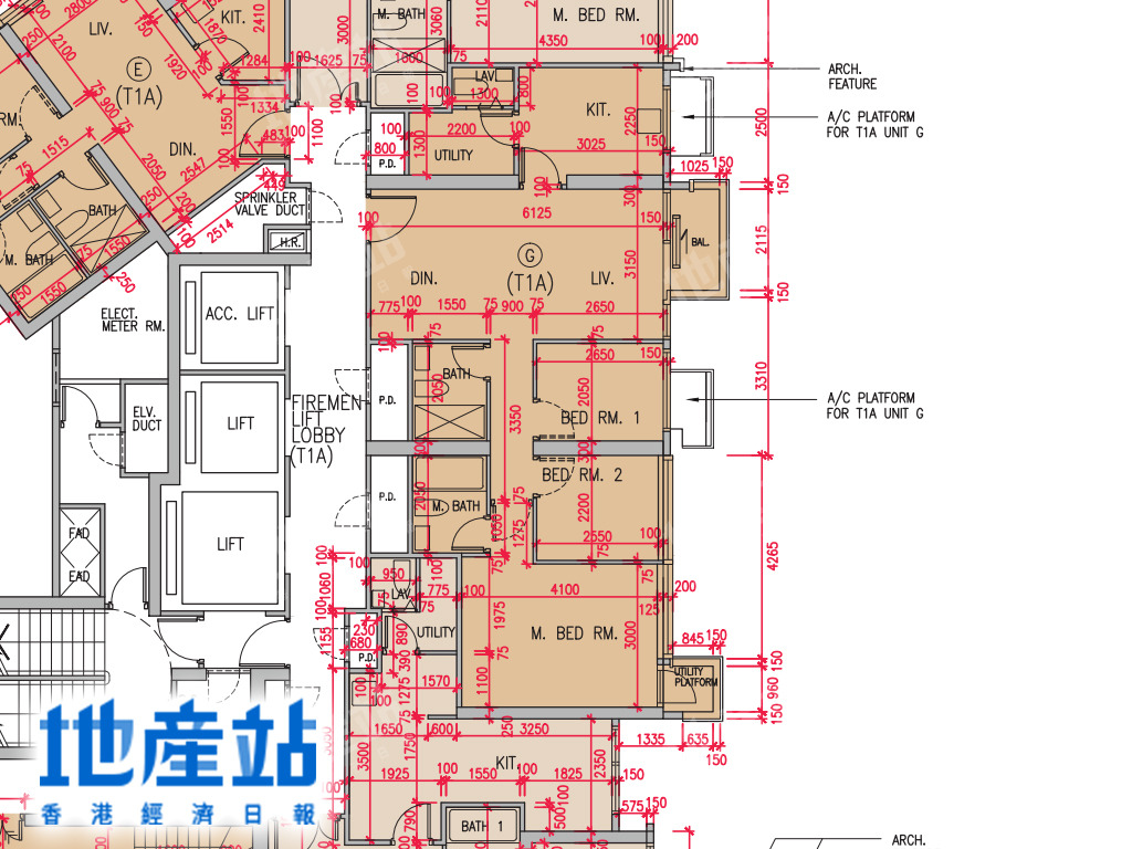
2房單位選擇較多,晉環1A座6至22樓B及C室開則較特別,不設走廊,屬雙套房設計,兩間套房分布大廳一左一右,面積亦達612平方呎;1A座6至40樓E室屬連2房(連套房)間隔,玄關有雜角,廚房屬梗廚,短走廊連接一細一大睡房,套廁連接工作平台;1B座C室屬475平方呎淨2房,開放式廚房設計,主人房外連工作平台。

3房的1A座6至21樓F室大廳長形且不連露台或工作平台,左邊為廚房,右邊以走廊連接兩睡房及主人套房,最特別是套房設步入式衣帽間,另外連露台;1B座6至42樓A室玄關較大並呈雜角,大門不會正對大廳,廳區外運露台,主人套房則外連工作平台;至於1B座6至42樓D室一入屋已經是長廳,露台置於側邊,另一側為廚房,兩間睡房與廳區同向,而主人太房內有工作平台。

4房供應可考慮1A座A室,中低層屬連套房,大門屬子母門設計,大門至露台門長約7.9米,廳闊約3.6米,3間睡房同向,另一間則望另外方向;中高層則屬連雙套房設計,面積較大,開則類近,當中睡房1變成套房設計,而廚房的工作間位置亦有不同;1A座22至40樓F室同屬雙套房設計,特點是長形玄關,露台面積亦較大,套房已有步入式衣帽間。

1
previous arrow
next arrow
1
2
3
4
5
6
7
8
9
10
11
12
13
14
15
16
17
18
19
20
21
22
23
24
25
previous arrow
next arrow
港島南岸第1期晉環第1座6至40/42樓標準單位
單位 實用面積(平方呎) 戶型 方向
1A座6至21樓A室 1135 4房(連套房)及工作間連廁 西南偏西方
1A座22至40樓A室 1205至1207 4房(連雙套房)及工作間連廁 西南偏西方
1A座6至22樓B室 612 2房(連雙套房) 西南偏西方
1A座6至22樓C室 612 2房(連雙套房) 西南偏西方
1A座6至40樓D室 383 1房(連套房) 東北
1A座6至40樓E室 572及581 2房(連套房) 東北
1A座6至21樓F室 937 3房(連套房)及工作間連廁 東北偏東方
1A座22至40樓F室 1218 4房(連雙套房)及工作間連廁 東北偏東方
1A座6至21樓G室 386 1房(連套房) 東南偏南方
1A座22至40樓G室 840 3房(連套房)及工作間連廁 東南偏南方
1A座6至21樓H室 392 1房(連套房) 東南偏南方
1A座6至21樓J室 387 1房(連套房) 東南偏南方
1B座6至42樓A室 919及921 3房(連套房)及工作間連廁 西南偏西方
1B座6至42樓B室 290 開放式 西北偏西方
1B座6至42樓C室 475 2房 西北偏西方
1B座6至42樓D室 882 3房(連套房)及工作間連廁 東南偏東

【港島南岸晉環第2座】

晉環第2座標準單位集中6至38樓,共5部升降機,開放式至3房單位均有供應。開放式單位只見於2B座6至38樓D室,面積294平方呎,入屋為玄關,右邊為浴室,採長形淋浴間設計,客飯廳方正,另連露台。

第2座1房供應亦不多,只有兩室提供,其中2A座6至38樓G室370平方呎,望東北方,玄關左邊為開放式廚房,方廳設計外運露台,比鄰為套房,浴室只兩邊門接連套房及大廳;2B座6至38樓B室開則亦相近,面積368平方呎,望西北方景觀。

晉環第2座2房供應多元化,淨2房可考慮傳統廚房或開放式廚房。開放式廚房2房方面,2B座E室入屋為小玄關,短走廊連接一細一大睡房,大房內有工作平台;2A座H室則不設過多玄關位;2A座B室則有雜角玄關,主人房則有梯形設計工作平台。至於2A座D及E室面積593及584平方呎,特點是不設玄關,大廳四正,採傳統廚房,浴室設兩邊門,大房可化身成套房設計。

3房方面,2B座C室639平方呎單位屬入場版3房,經玄關位連接大廳,飯廳旁屬L形設計的開放式廚房,走廊連接2間睡房及主人套房,兩間細睡房外有冷氣機平台,有興趣人士要留意;2A座6至38樓A室766平方呎,大廳空間明顯較大,長約7.6米及闊3.5米,主人套房設曲尺賞景窗;2A座6至38樓F室面積728平方呎,同樣長廳設計,不過廚房不設工作間連廁,主人套房同樣有曲尺窗;2A座6至38樓A室一入大門為雜角玄關位。

1
previous arrow
next arrow
1
2
3
4
5
6
7
8
9
10
11
12
13
14
previous arrow
next arrow
港島南岸第1期晉環第2座6至38樓標準單位
單位 實用面積(平方呎) 戶型 方向
2A座6至38樓A室 766 3房(連套房) 南方
2A座6至38樓B室 476 2房 南方
2A座6至38樓C室 477及493 2房 東南方
2A座6至38樓D室 593 2房(連套房) 西北方
2A座6至38樓E室 584 2房(連套房) 西北方
2A座6至38樓F室 728 3房(連套房) 西北方
2A座6至38樓G室 370 1房(連套房) 東北方
2A座6至38樓H室 488 2房 東北方
2B座6至38樓A室 856 3房(連套房)及工作間連廁 西北方
2B座6至38樓B室 368 1房(連套房) 西北方
2B座6至38樓C室 639 3房(連套房) 東南方
2B座6至38樓D室 294 開放式 東南方
2B座6至38樓E室 487 2房 西南方

資料來源:香港經濟日報 地產站