何文田Prince Central平面圖分析 邊啲單位望太子道西?7呎平台特色戶?

新地何文田太子道西195號全新盤Prince Central樓書已公布,Prince Central平面圖已曝光,涉及101伙。Prince Central戶型開放式至4房單位,實用面積251至1351平方呎。地產站為各位讀者分析一下,Prince Cen­tral各單位的平面圖及布局!

【低至中層】

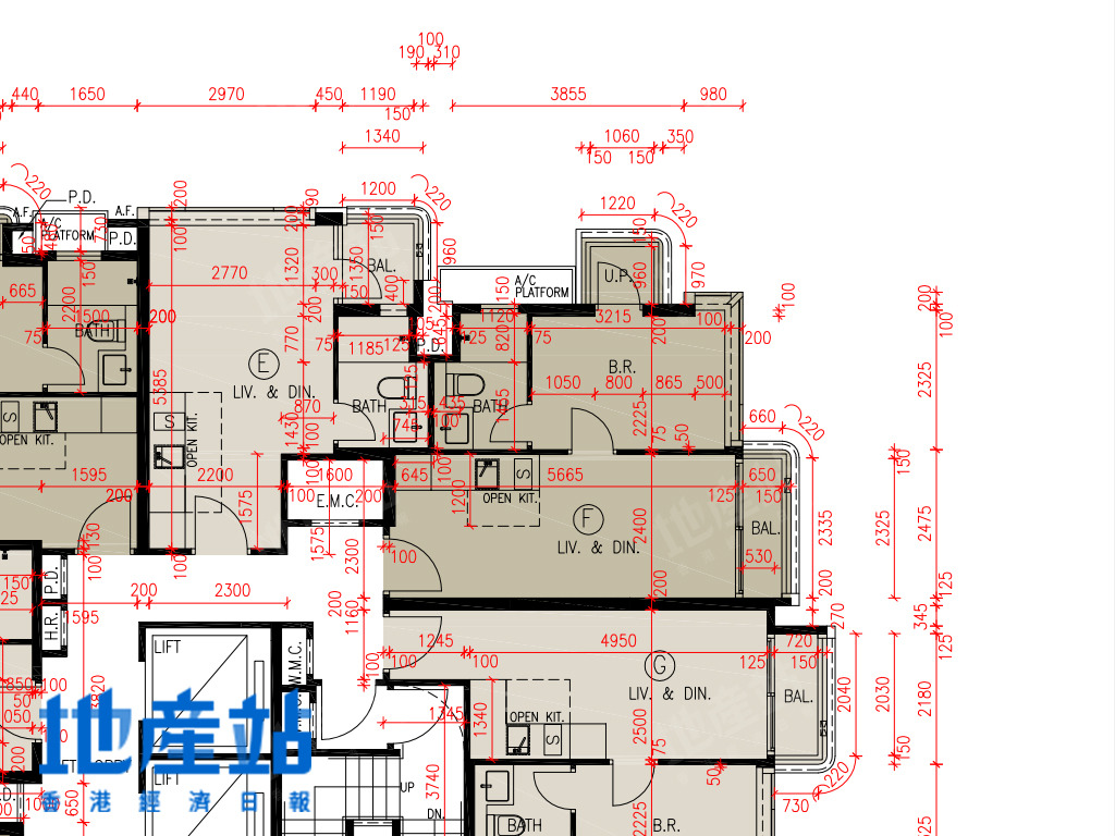
Prince Central屬單幢式住宅,標準單位集中5至17樓,惟11及12樓作分界綫,5至11樓1層8伙設計,而12至17樓1層7伙設計,布局稍有不同。

Prince Central的5至11樓單位,A至D室全部面向北面,望太子道西,A室設小玄關,向右轉才是開放式廚房及長廳,短走廊連接一細一大睡房,浴室內設16平方呎工作平台;B室及C室同屬1房(連套房)間隔,開則相近,C室開放式廚房位置凹入,而睡房窗戶稍為閣一些。D室單位大門直對開放式廚房,長廳連接露台,睡房同望北,而房間一邊設16平方呎工作平台,面向東面,浴室淋浴間位置設有活窗。

E室開放式開則方正,望東邊,22平方呎露台設於廳區一側,而浴室同設有窗戶;F室長廳不設玄關,套房方正,套廁備活窗;G室同樣屬1房(連套房)設計,浴室的窗戶則稍闊。 H室單位大門正對浴室,廳區呈長形,連接23平方呎的梯形露台。

12至17樓布局A至E室與5至11樓一樣,F室改為3房(連套房)間隔,面積624平方呎,長廳設計,左邊為梗廚及睡房1,另一邊走廊連接一細一大睡房,主人套房採曲尺窗,內有16平方呎工作平台,套廁設活窗;至於266平方呎G室開放式,與5至11樓H室大同小異,只是室號不同。

01
previous arrow
next arrow
01
02
03
04
05
06
07
08
09
10
11
12
previous arrow
next arrow
Prince Cen­tral 5至17樓
單位 實用面積(平方呎) 戶型 方向
A 436 2房 北方
B 296 1房(連套房) 北方
C 303 1房(連套房) 北方
D 345 1房(連套房) 東方及北方
E 251至254 開放式 東方
5至11樓F 338 1房(連套房) 南方
5至11樓G 344 1房(連套房) 南方
5座11樓H 266 開放式 南方及西方
12至17樓F 624 3房(連套房) 南方
12至17樓G 266 開放式 南方及西方

【高層】

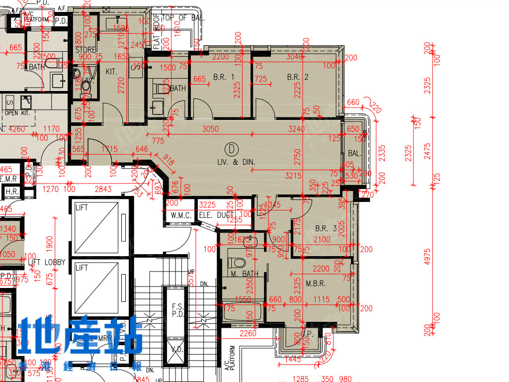
Prince Central的18樓單位1層4伙設計,包括1房、2房及4房單位,當中18樓A室屬於標準樓層中罕見的特色單位,面積871平方呎,大門入屋後,左邊為廳區,右邊經通道,一邊為洗手間,一邊為廚房,內設儲物室連廁外,亦備16平方呎工作平台及7平方呎平台。經通道走到走廊,設有4間睡房,同面向太子道西方向,睡房3設有對流窗。

01
previous arrow
next arrow
01
02
03
04
05
previous arrow
next arrow

B室設布玄關,採開放式廚房,不設走廊,兩間睡房分布一左一右,不設工作平台;C室1房(連套房)間隔,不設走廊,間隔實用;D室面積892平方呎,屬標準單位最大,大門正對廚房,廚房長形開則,工作枱呈L形,廳區長廳開則,一邊為兩間睡房,睡房2設曲尺大窗,另一邊為1間睡房及1間主人套房,套廁同時設淋浴間及浴缸。

19樓1層3伙設計,全屬大單位設計,面積684至890平方呎,A室869平方呎,開則布局與樓下18樓A室相近,惟不設平台;B室684平方呎,3房(連套房)間隔,大門正對廚房,比鄰為方正客飯廳,一邊設22平方呎露台,一邊設16平方呎工作平台,走廊連接2間睡房及1間主人套房,同望太子道西。C室單位890平方呎,望東方及南方,開則布局與樓下18樓D室相近。

01
previous arrow
next arrow
01
02
03
04
previous arrow
next arrow
Prince Cen­tral 18至19樓
單位 實用面積(平方呎) 戶型 方向
18樓A 871 4房(連套房)及儲物室連廁 西方及北方
18樓B 349 2房 北方
18樓C室 344 1房(連套房) 東方及北方
18樓D 892 4房(連套房)及儲物室連廁 東方及南方
19樓A 869 4房(連套房)及儲物室連廁 西方及北方
19樓B 684 3房(連套房) 東方及北方
19樓C 890 4房(連套房)及儲物室連廁 東方及南方

資料來源:香港經濟日報 地產站